Chongqing Grand Theater
Chongqing, China
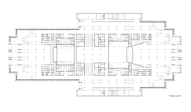
Mit seiner Nähe zum Wasser scheint das „Grand Theater“ über dem Fluss Yangtse zu schweben. Eine steinerne Sockelplattform bildet die Basis für die gläserne Skulptur, Grund- und Aufriss folgen trotz scheinbar willkürlicher Expressivität und maritimen Analogien streng den funktionalen Anforderungen. Zwei Konzertsäle mit ihren zugeordneten Foyers liegen auf der Längsachse, gleichsam auf der „Kiellinie“ eines Schiffes, und bilden so am Bug und Heck die Eingangsbereiche aus. Mittig, also „mittschiffs“, zu diesen beiden Eingangsbereichen liegt die Ausstellungshalle, die alle Foyerflächen des Theaters miteinander verbindet.
Wettbewerb
2004 - 1. Preis
Entwurf
Meinhard von Gerkan mit Klaus Lenz
Bauherr
Chongqing Urban Construction Investment
Bauzeit
2005–2009
BGF
100.000 m²
- Architecten
- gmp · Architekten von Gerkan, Marg und Partner
- Jaar
- 2009
- Projectstatus
- Built












