Grundschule Neusserstraße Köln

Köln, Duitsland

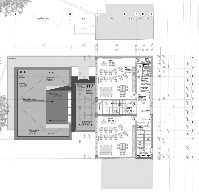
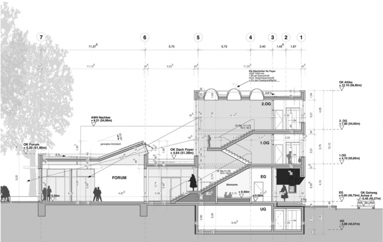
Erweiterung einer Grundschule durch Schliessung in einer Baulücke. Der Neubau und die zwei Bestandsgebäude bilden einen Campus mit differenzierten Aussenbereichen.

Architecten
Roland Dorn
Jaar
2010
Projectstatus
Built

Gerelateerde projecten 

  • Moos
    playze
  • Reiters Reserve Premium Suiten
    BEHF Architects
  • Erweiterung und Instandsetzung Hallenbad Altstetten
    MIYO Visualisierung
  • Neubau von fünf Einfamilienhäusern
    Bäumlin+John AG
  • The Forge in der 105 Sumner Street in London
    Kiefer Klimatechnik GmbH

Magazine 

Andere projecten van Roland Dorn 

Die Bastei Köln
Köln, Duitsland
Gartenhaus Förderschule Velbert
Velbert, Duitsland
Grundschule Neusserstraße Köln
Köln, Duitsland
Parkdeck – Technologiepark Paderborn
Paderborn, Duitsland
Büro- und Ausstellungsgebäude Paderborn
Paderborn, Duitsland