Haus in Dombach
Bad Camberg, Duitsland
Video © Börries Götsch | Architektur
Black and White
Zwei Häuser, eins schwarz, das andere weiß, für Mutter und Tochter.
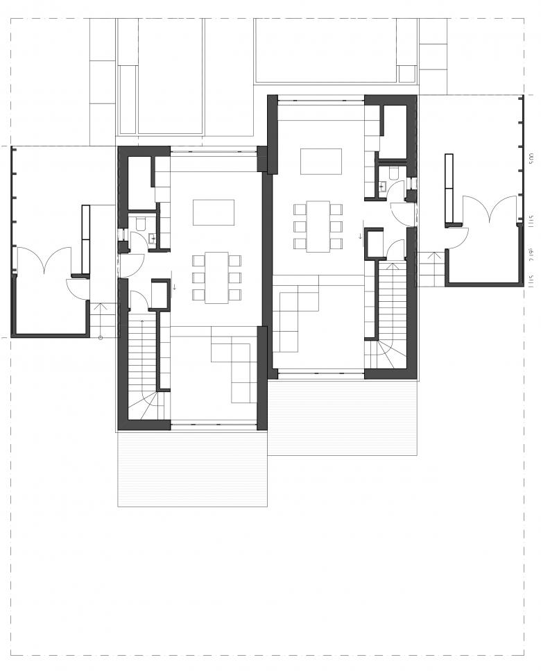
Ein Doppelhaus mit zwei klassischen Satteldächern, auf das Wesentliche reduziert.
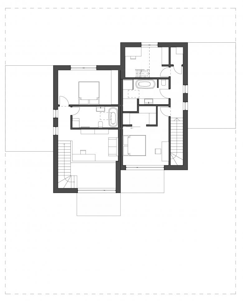
Trotz der kleinen Wohnfläche von jeweils 85 & 90 Quadratmetern wirken die Häuser innen großzügig und offen.
Der gesamt Grundriss wurde auf ein bestehendes Möbelraster abgestimmt. Dadurch konnte das Budget geschont und dennoch eine hochwertige Optik erreicht werden.
Aus Holz gebaut und hocheffizient, mit einer Heizung für beide Häuser.
/ Doppelhaus für Mutter und Tochter
/ ca. 85 m² + 90 m²
/ Holzständerbauweise mit Holzfassade
/ fertiggestellt
- Architecten
- Börries Götsch | Architektur BDA
- Jaar
- 2021
- Projectstatus
- Built
- Klant
- privat















