Konzerthaus Nürnberg
Schultheissallee / Münchener Straße, Nürnberg
In Zusammenarbeit mit Johannes Kappler und Topotek 1 haben wir den 1. Preis im Wettbewerb für das neue Konzerthaus Nürnberg gewonnen.
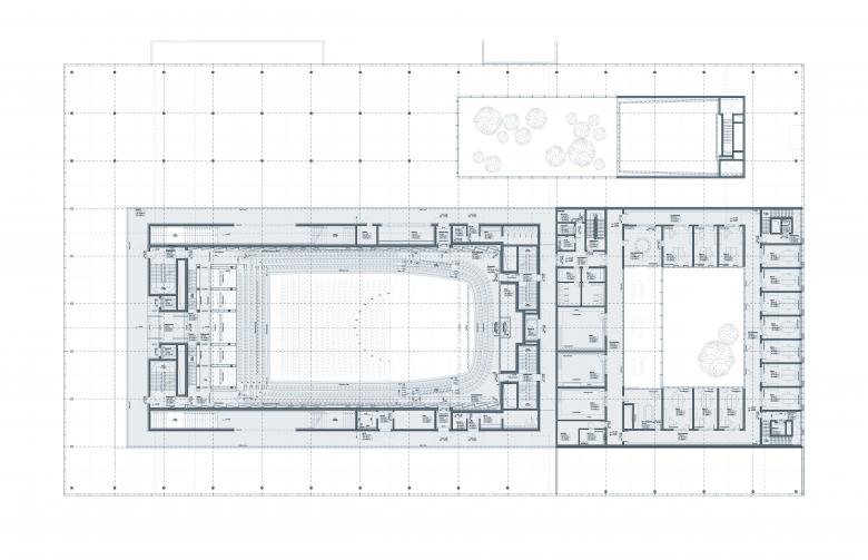
Die Leitidee des Entwurfs erweitert das Ensemble der Meistersingerhalle um einen eigenständigen Solitär, der auf der einen Seite das typologische Prinzip des Bestandsgebäudes und seiner Verzahnung mit der Landschaft fortführt, auf der anderen Seite ein neues Raum- und Klangerlebnis addiert. Dieses besondere Verhältnis aus Gleichheit und Differenz, aus Distanz und Nähe, aus Vertrautem und Fremden lässt die zeitgeschichtlichen Qualitäten beider Gebäude auf ideale Weise zur Geltung kommen. Der Entwurf ist einerseits eine prägnante Großform, andererseits frei von spektakulären Gesten. Er verbindet Architektur, Programm und Städtebau zu einem spezifischen, nur zu diesem Ort passenden Ganzen.
Begründung der Jury:
„Die Arbeit versteht in überzeugender Art und Weise, die Qualitäten der Meistersingerhalle zu erkennen und mit dem neuen Konzerthaus zu einem Ensemble zu verbinden. Die prägenden Elemente der Meistersingerhalle (Foyer, Atrien, durchgehender Sockel) werden aufgenommen und zu einem fließenden Raum aus Konzertsälen und öffentlichen Begegnungszonen verbunden.
Das neue Konzerthaus nutzt das vorgegebene Baufeld fast vollständig aus und verschafft sich so, unter Berücksichtigung des bestehenden Maßstabs, eine hohe Präsenz im Stadtraum. Der Sockel nimmt die bestehende Traufhöhe auf und rückt – wie die Meistersingerhalle auch – die großvolumigen Konzertsäle leicht ein. Dies trägt wesentlich zur gelungenen Ensemblewirkung bei.
Das neue Konzerthaus wirkt offen und einladend. Alle wesentlichen Funktionen des Vorderhauses werden im Erdgeschoss angeordnet, hierdurch gewinnt der Verfasser für das neue Konzerthaus Lesbarkeit, Orientierung und letztlich auch Identität.
Der Übergang zwischen Bestand und Neubau wird mit dem bereits bekannten Element des Atriums geschaffen. Es lenkt die Besucher um, markiert den Übergang und wird als besonderer Ort noch einmal betont.
Der Einsatz von Naturstein, Holz und Glas lässt eine einfache Realisierung und einen wirtschaftlichen Betrieb erwarten. Das Gebäude zeigt sich in seiner Struktur und Materialisierung robust und langlebig.
Der Entwurf hat ein großes Potential, die geforderte Qualität für den Konzertsaal zu erfüllen.
Insgesamt entwickelt die Arbeit aus einfachen entwurflichen Grundelementen eine klare architektonische Haltung. Sie ist sich der Qualität der bereits bestehenden architektonischen Elemente bewusst und komponiert sie sensibel und gekonnt zu einem Gesamtbild. Diese Bescheidenheit und Leichtigkeit ist die besondere Qualität der Arbeit und führt zu einem überzeugenden Entwurf eines neuen Konzerthauses für Nürnberg.“
- Architecten
- studio sufuco Architekt*innen BDA
- Jaar
- 2018-2020
- Projectstatus
- Design
- Team
- Steven Davé, Alexander Hofmeier, Anja Davé, Lukas Feile, Annette Strack, Johannes Kappler
































