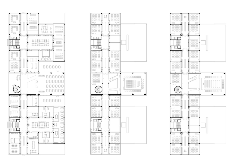
Liceo Cantonale di Bellinzona
Bellinzona, Zwitserland
- Architecten
- Durisch + Nolli Architetti
- Jaar
- 2018
- Projectstatus
- Design
- Klant
- Repubblica e Cantone Ticino, Dipartimento delle Finanze e dell'Economia, Divisione delle Risorse, Sezione della Logistica
- Team
- Pia Durisch, Aldo Nolli, Niccolò Nessi, Irene Giovanetti, Ulrike Krommer
- Bauingenieur
- Schnetzer Puskas Ingenieure AG
- HLKS-Planung
- Tecnoprogetti SA
- Elektroplanung
- Erisel SA
- Bauphysik
- IFEC ingegneria
Gerelateerde projecten
Magazine
-
Bouwwerk van de week
The Three-Body Problem: Trapped in a Wave Sandwich
Eduard Kögel, Scenic Architecture Office | 13.04.2026 -
-










