«Magazine Radial» Vollautomatisiertes Parking
Zürcherstrasse, Schlieren, Zwitserland
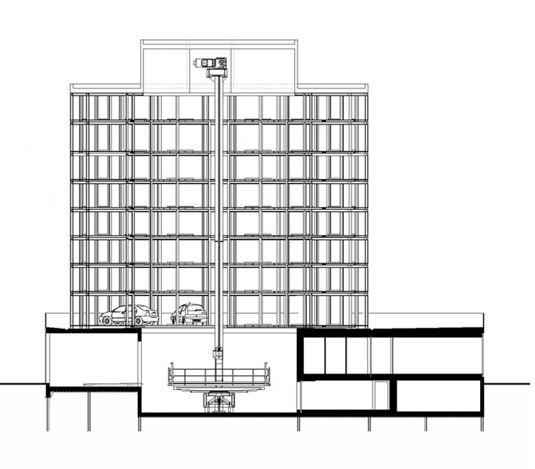
Die westliche Einfallsachse von Zürich ist geprägt vom Autohandel. Damit das Grundstück der „auto züri west“ effizienter genutzt werden kann, wird ein neuartiges, vollautomatisiertes Parkhaus gebaut. Das als Stahlbau konzipierte Parkhaus steht auf einem massiven Sockelgeschoss in welchem die Administration, eine Waschanlage, ein Showroom und eine Autowerkstatt eingeschrieben sind. Der wie ein Hochregallager funktionierende „Autosilo“ steht Exzentrisch auf dem runden Sockelbau, welcher tektonische Analogien zur Tankstellenarchitektur der Fünfzigerjahre aufweist. Die Formensprache der gesamten Anlage steht unter der Maxime des Automobils und dessen bequemen und effizienten Manövrierbarkeit.
- Architecten
- haefele schmid architekten ag
- Jaar
- 2013
- Projectstatus
- Design
Gerelateerde projecten
Magazine
-
-
Bouwwerk van de week
The Three-Body Problem: Trapped in a Wave Sandwich
Eduard Kögel, Scenic Architecture Office | 13.04.2026 -












