Modules Scolaires préfabriqués à Genève
"1 - Ecole de Trembley, Rue Pestalozzzi 4, 1202 Genève 2 - Ecole des Allières, Rue des Allières 14, 1208 Genève 3 - Ecole des Franchises, Route des Franchises 54, 1203 Genève 4 - Ecole de Vieusseux, Cité Vieusseux 14, 1203 Genève", Genève, Zwitserland
Construction de 6 écoles modulaires préfabriquées en bois, provisoires et déplaçables, sur 4 sites
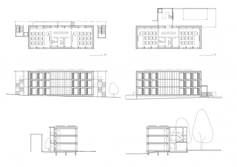
L’objectif de la Ville de Genève est de mettre à disposition très rapidement de nouvelles infrastructures scolaires et parascolaires répondant aux critères énergétiques THPE pour les sites de Trembley, Allières, Franchises et Vieusseux. Afin de raccourcir au maximum la phase d’exécution, le choix de la Ville s’est porté sur un système de préfabrication en bois pour réaliser ces bâtiments.
À Trembley, les deux nouveaux volumes suivent la règle d’implantation le long d’une colonne vertébrale de l’école existante, en prolongeant le préau couvert. Les deux volumes imbriqués contenant les classes sont sertis par des arbres séculaires majestueux. Trois grandes ouvertures par classes munies de claustras assurent un éclairage naturel et une vue sur le parc environnant.
Le système constructif favorise l’emploi du bois pour réaliser les planchers, les murs et les façades. Le mobilier intérieur fixe, également réalisé en bois, contribue au caractère chaleureux des classes.
Ecoles primaires composées de classes, classes spéciales, salles des maîtres, réfectoires
Site de Trembley : bâtiment école : 12 classes, bâtiment réfectoire avec cuisine RT
Site de Allières : 6 classes
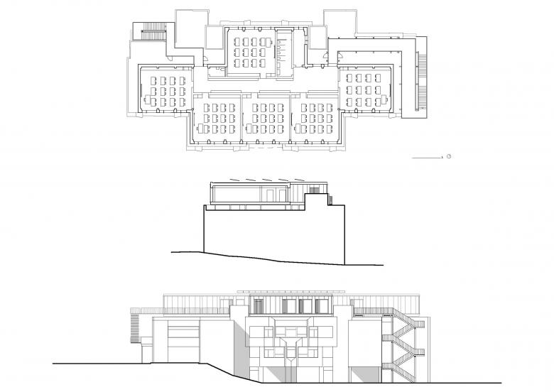
Site de Franchises : 2 bâtiments de 6 classes
Site de Vieusseux : 14 classes + réfectoire avec cuisine RT
- Architecten
- PONT12 architectes sa
- Jaar
- 2023
- Projectstatus
- Built
- Klant
- Ville de Genève
- Ingénieur civil
- EDMS
- ingénieur CVS. physique du bâtiment
- Weinmann SA
- Ingénieur E
- BETELEC SA
- ingénieur Géotechnicien
- Karakas Français SA



































