Neubau 5 Eigentumswohnungen

Visualization © Dominik Mateášik

Ort

Die Qualität des Standorts ist die zentrumsnahe Lage gleich neben der Schule und das umgebende Naherholungsgebiet. Der Bahnhof und das Stadtzentrum sind in 10 Minuten zu Fuss erreichbar. Die Parzelle zeichnet sich durch die Hanglage und die Südorientierung gegen den Hang aus.

Konzept

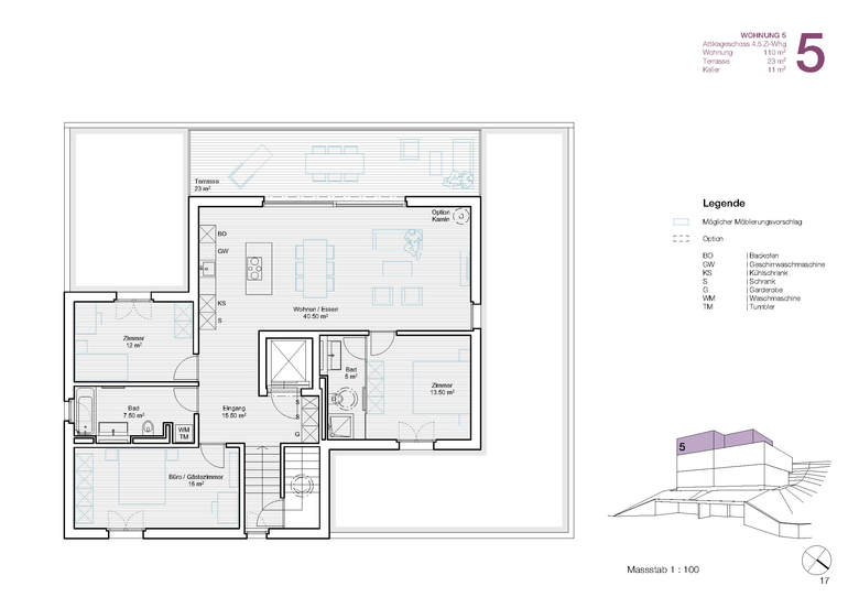
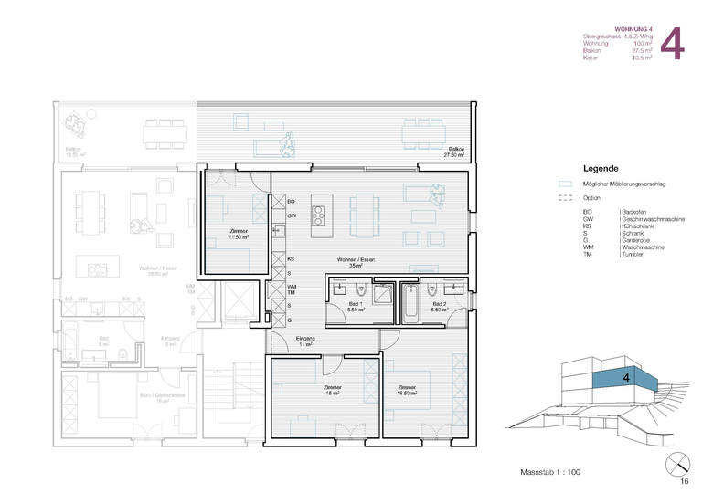
Wohnen im Grünen, stellt den Grundgedanken des architektonischen Konzeptes des Mehrfamilienhauses dar. Volumetrisch wird die Liegenschaft als eine Einheit gelesen. Dank der Hanglage bieten sich die Technikräume und Parkplätze im Sockelgeschoss an. Die fünf Wohnungen werden durch ein zentrales Treppenhaus mit Lift erschlossen. Jedes Geschoss weist seine eigenen Aussenraumqualitäten auf. Die Wohnungen im Erdgeschoss verfügen über einen grosszügigen, geschützten Garten mit einer intimen Atmosphäre. Die Wohnungen im Obergeschoss profitieren von grossen Balkonen. Die Attikawohnung, bietet einen wunderschönen Ausblick von der grosszügigen Terrasse und wird direkt durch den Aufzug erschlossen.

Innenraum

Die Grundrisse sind einfach und rationell gegliedert. Sie profitieren von optimaler Flächenausnützung und Lichtverhältnissen. Die Wohnräume sind gegen Süden orientiert, die Schlafräume gegen Norden. Die grösseren Wohnungen verfügen über zwei Nasszellen Dusche/Bad, die kleineren über ein Badezimmer. Die modernen Küchen sind offen gestaltet, mit einer Kochinsel, und mit hochwertigen Küchenapparaten ausgestattet. Die Materialisierung ist modern, schlicht und entspricht dem heutigen Eigentumswohnungsstandard. Die Wohnungen verfügen über eigene integrierte Waschmaschinen und Trockner.

Visualization © Dominik Mateášik
Visualization © Dominik Mateášik
Architecten
apart architektur
Jaar
2018

Gerelateerde projecten 

  • Moos
    playze
  • Reiters Reserve Premium Suiten
    BEHF Architects
  • Erweiterung und Instandsetzung Hallenbad Altstetten
    MIYO Visualisierung
  • Neubau von fünf Einfamilienhäusern
    Bäumlin+John AG
  • The Forge in der 105 Sumner Street in London
    Kiefer Klimatechnik GmbH

Magazine 

Andere projecten van apart architektur 

Neubau Garderobengebäude Mettmoos
Biel, Zwitserland
Umbau Ferrari
Bern, Zwitserland
Umbau Eigentumswohnung
Biel, Zwitserland
Sanierung Wohnungen "Bözingenstrasse"
Biel, Zwitserland
Erweiterung Aula Untere Au
Heimberg, Zwitserland