Neubau Baustoffhandel mit Dienstleistung, Gewerbe und Wohnen
Ausgangslage
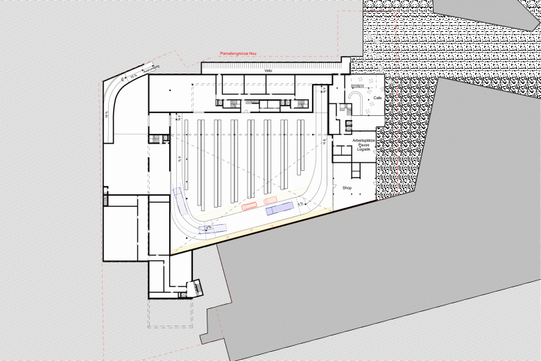
Die Parzelle der HG Commerciale an der Uetlibergstrasse 93, Zürich hat eine Grundstücksfläche von 8’362m2. Derzeit ist sie einer der traditionellen Standorte der HG Comerciale für den Baustoffhandel. Aufgrund der fortschreitenden Entwicklung im Quartier entstehen rund um das HGC-Grundstück Neubauten, wie zum Beispiel die zwei Neubauten der Stiftung Abendrot auf der westlichen Nachbarparzelle und das Hochhaus beim Buchmannareal. Die städtische Lage für einen Baumaterialhandel kann hinterfragt werden, soll derzeit aber am Tarditionsstandort erhalten bleiben. Es handelt sich bei diesem Grundstück um das älteste aus der Gründungszeit 1899 der HG Commerciale, welches historisch bedingt nicht zur Veräusserung steht. Die Parzelle grenzt im Norden an die Zeilenbauten entlang der Uetlibergstrasse und im Süden an das Gleisfeld. Im Osten liegt die UHA der SZU im Westen die neuen Wohnhäuser der Stiftung Abendrot. Der Neubau für die UHA der SZU ist um einiges länger als der Bestand. Der Betrieb der HGC ist mit dem Neubau in der heutigen Form nicht mehr möglich. So wurde mit dieser Machbarkeitsstudie evaluiert, was auf dem Areal und der neuen Parzellenform umgesetzt werden kann.
Es wird ein bereinigter Grenzverlauf mit einem ähnlich wertigen Landabtausch vorgeschlagen. An der Uetlibergstrasse kann ein volumetrisch präsenter Hofbau entstehen, welcher von öffentlichem und halböffentlichem Raum umspült wird. Südwestseitig bleibt genügend Platz, um einen Längsbau mit realistischer Bautiefe, bis an die Gleise zu stellen.
Situation
Das Areal liegt in zweiter Reihe zur Uetlibergstrasse und stösst im Südosten ans Gleisfeld der SZU und den Neubau der SZU Werkhallen. Die stadträumliche Betrachtung zeigt auf, dass sich das HGC-Areal an einem Ort der kontinuierlichen Entwicklung befindet. Der morphologische Massstabssprung zwischen der Uetlibergstrasse und den Geleisen ist charakteristisch: In der Nachbarschaft begegnen grosse Strukturen kleinmassstäblichen Bauten. Nutzungen verschiedenster Art stehen nebeneinander in einem ergänzenden Miteinander, die Stadträume sind informell.
Der öffentliche Fussweg kann zusammen mit einer möglichen Ersatzfläche für das Naturschutz Invetarobjekt entlang der Parzellengrenze zur Stiftung Abendrot und mit einem Fussgängersteg über die Geleise auf das Areal des Druckzentrum Zürich geführt werden. Der heutige Geländesprung zur Stiftung Abendrot soll dabei angeglichen werden. Mit einem neuen Trottoir entlang der Erschliessungsschlaufe im Nordwesten wird die Anbindung im Nordosten gesucht. Mit öffentlichkeitsorientierten Nutzungen im UG und der Gestaltung des Freiraums soll im Nordosten die Anbindung zum Bürogebäude der SZU und zum neuen Hochhaus am Bahnhof Binz erfolgen.
- Architecten
- Traxel Architekten
- Projectstatus
- Design
- Klant
- HG Commerciale
- Team
- Philippe Niffeler, Gabriela Traxel, Pascal Schettki
- Bauingenieur
- Schnetzer Puskas
- Kostenplanung
- ReBo&Partner
- Landschaftsarchitektur
- Haag Landschaftsarchitektur, Zürich
Gerelateerde projecten
Magazine
-
-
Bouwwerk van de week
The Three-Body Problem: Trapped in a Wave Sandwich
Eduard Kögel, Scenic Architecture Office | 13.04.2026 -













