Neubau Oberstufenzentrum Rötschmatte
Rötschmatte 23, Ins, Zwitserland
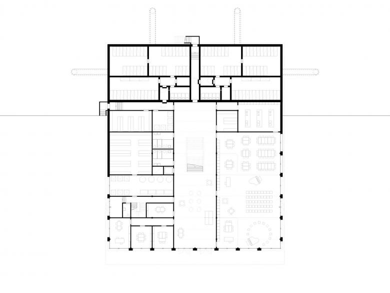
Das neue Oberstufenzentrum wird als kompaktes Volumen im südwestlichen Bereich des Projektperimeters positioniert. Als flächiges Gebäude nimmt es den Massstab der angrenzenden Sporthalle Rötschmatte auf. Zwischen den beiden öffentlichen Bauten liegt der bestehende Allwetterplatz als Bindeglied. Die kompakte Setzung des Neubaus erlaubt in einer späteren Etappe die Setzung eines weiteren Bausteines in der Zone für öffentliche Bauten. Das drei- bis viergeschossige Gebäude zeichnet mit seiner Höhenstaffelung die abfallende Topographie nach. Der Gebäudeeinschnitt zum südlich davorliegenden Ankunftsbereich markiert den Zugang des neuen Oberstufenzentrums und schafft eine klare Adressierung. Das Erdgeschoss wird mit den gesamtschulischen Nutzungen und den Empfangsräumen beim Haupteingang bespielt. Im 1.Obergeschoss sind die Fachklassenzimmer und der Lehrpersonenbereich untergebracht. Ab dem 2.Obergeschoss werden die 15 Klassenzimmer auf eineinhalb Geschossen angeordnet. Eine mittig liegende, grosszügige Freitreppe verbindet alle Geschosse miteinander. Der tiefe Gebäudegrundriss wird mit zwei mittig liegenden Patios, welche bis ins 1.Obergeschoss reichen, gegliedert. So werden die innenliegenden Erschliessungsbereiche mit natürlichem Licht versorgt und erhalten dadurch die Qualität von Lernzonen. Die nutzungsneutrale Gebäudestruktur ermöglicht dauerhafte Flexibilität und Anpassbarkeit, so dass unterschiedliche Unterrichtsformen von der heutigen Unterrichtsform bis zur offenen Lernlandschaft realisiert werden können.
- Architecten
- SOPPELSA ARCHITEKTEN
- Jaar
- 2025 - 2027
- Projectstatus
- Under Construction
- Klant
- Gemeinde Ins















