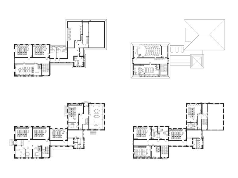
Sanierung Schulanlage Höheweg
Langnau, Zwitserland
- Architecten
- Haller Gut
- Jaar
- 2008
- Projectstatus
- Built
Gerelateerde projecten
Magazine
-
Bouwwerk van de week
The Three-Body Problem: Trapped in a Wave Sandwich
Eduard Kögel, Scenic Architecture Office | 13.04.2026 -
-






