Schulhaus Rotweg
Rotweg 11, Wädenswil, Zwitserland
Das neue Schulhaus integriert sich in das städtebauliche Muster der bestehenden Schulanlage. Zur Stadt setzt der Neubau ein Zeichen für eine neue Oberstufenschule. Das Gebäude dockt an den grossen Pausenplatz an, wo es die Höhe der anderen Bauten übernimmt und den Blick Richtung See für die Anwohner im Süden frei lässt.
Auf einem von Grün umspülten Betonsockel erhebt sich leicht der dreigeschossig sich allseitig orientierende holzverkleidete Oberbau. Kräftige horizontale Holzbänder kontrastieren mit vertikalen Holzschwertern, welche im Sommer mit deren Verschattungspotential optimalen Wärmeschutz bieten.
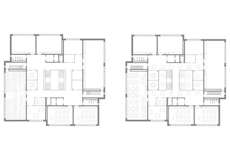
Das Raumprogramm ist auf vier Geschosse aufgeteilt. Zwei Klassengeschosse mit ausgedehnten Lernlandschaften, das Erdgeschoss mit den öffentlicheren Nutzungen und das Sockelgeschoss mit den Kreativnutzungen.
Je drei Klassenzimmer mit ihren Gruppenräumen gruppieren sich clusterartig um «Kombizonen», die gemeinsam genutzt und bespielt werden können. Jeweils zwei Klassenzimmer können zu Grossklassen zusammengelegt werden. Die Grundrissdisposition ermöglicht selbstorganisiertes Lernen, klassenübergreifende Aktivitäten und Erholung in der Pause.
- Architecten
- MSA Meletta Strebel Architekten AG
- Jaar
- 2016
- Projectstatus
- Built
- Klant
- Stadt Wädenswil
- Landschaftsarchitektur
- Hager Partner AG












