Transformation Tabakscheune
Halde, Uerschhausen, Zwitserland
AUSGANGSLAGE
Zwei Geschwister und ihre Familien wünschten sich, je ein Wohnhaus auf dem Grundstück des elterlichen Hofes zu realisieren. Aufgrund der komplexen baurechtlichen Ausgangslage entschied sich die Bauherrschaft, im Rahmen eines eingeladenen Wettbewerbes die Möglichkeiten auszuloten.
KONZEPT
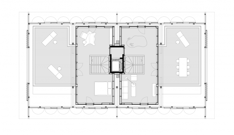
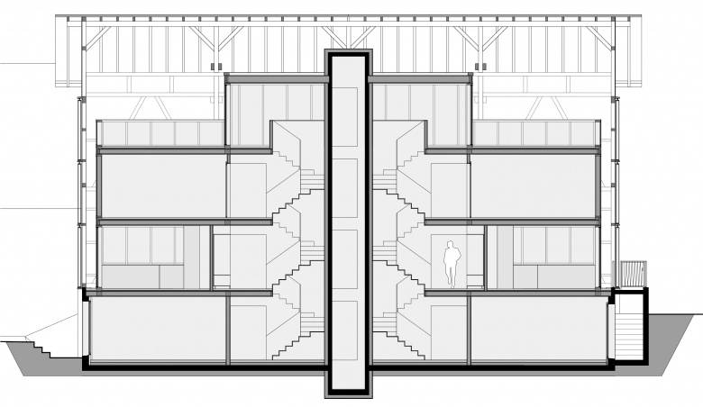
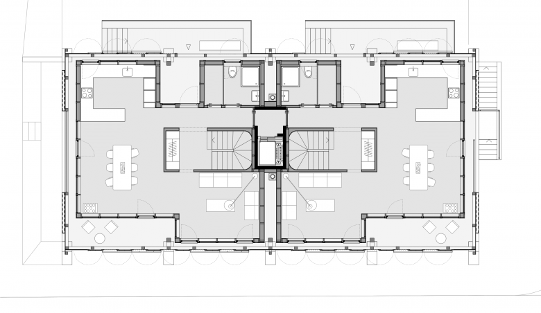
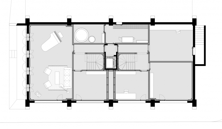
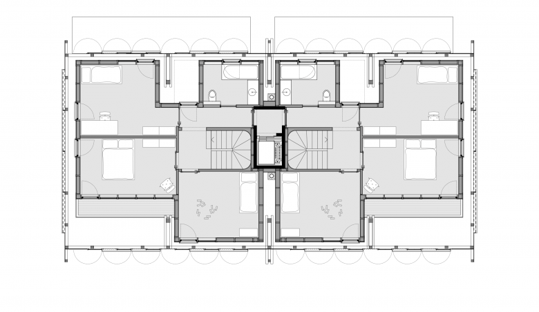
Wir schlugen der Bauherrschaft vor, auf einen angedachten Ersatzneubau zu verzichten und stattdessen die ortsbildprägende Tabakscheune zu erhalten und zum Wohnhaus zu transformieren. Die Scheune beliessen wir in ihrem ursprünglichen Charakter und entwickelten im Inneren ein freistehendes Haus. Die Tabakscheune dient dabei als Wetterschutz für das neue Haus. Auf jedem Geschoss ändert sich der Raum zwischen der Scheune und dem Wohnhaus von schmalen Gehwegen zu weiten Terrassen. Die Fassade der Tabakscheune mit den charakteristischen Lüftungsklappen bildet einen öffenbaren Filter, welcher die grosszügig verglasten Räume in wechselnde Lichtstimmungen taucht und es den Bewohnenden erlaubt, ihr Haus offen und luftig oder introvertierter zu haben.
- Architecten
- Orso Studio
- Jaar
- 2016
- Projectstatus
- Built
- Auftragnehmer der Bauherrschaft
- me.architektur ag































