UAB Humanities Library
Plaça del Coneixement, Bellaterra (Cerdanyola), Spanje
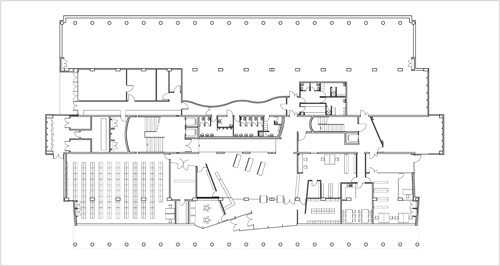
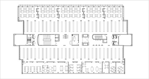
This Library pretended to solve the needs of the UAB Humanities Area. The building was built in different phases, with a total surface of 7500 sqm divided in 4 floors. It gives service to Literature, Psychology, Education Sciences and Translation and interpretation Faculties. The Library takes the typical Campus typology –the bar shape- and compacts linked but autonomous pieces that are coordinated depending on the paths and the activity of the users, like a well-oiled big machine. This reference made us to think in some good examples of the modern architecture. The façades are designed according to the climate control of the conditions given by each orientation. At the south narrow windows with horizontal sun protections, and at the north, wide windows and vertical sun protections













