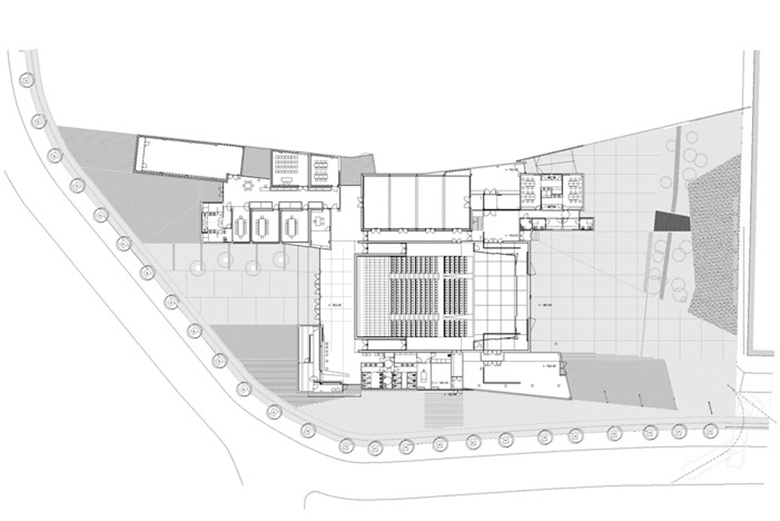
Vilafranca del Penedès Auditorium
Carrer Bodegues Torres, Vilafranca del Penedès, Spanje
The specialization of a hall should not be incompatible with its versatility. We should organize different events such as concerts, theater plays, conferences, balls... but without denying or hiding its main function. This is the case of Vilafranca del Pendès Auditorium. With a 504 assistants capacity, and despite its specialization for the live music without amplifiers allows an extraordinary vitality due to its variety of configurations.












