Wohnhaus Streitholzstrasse
Zürich
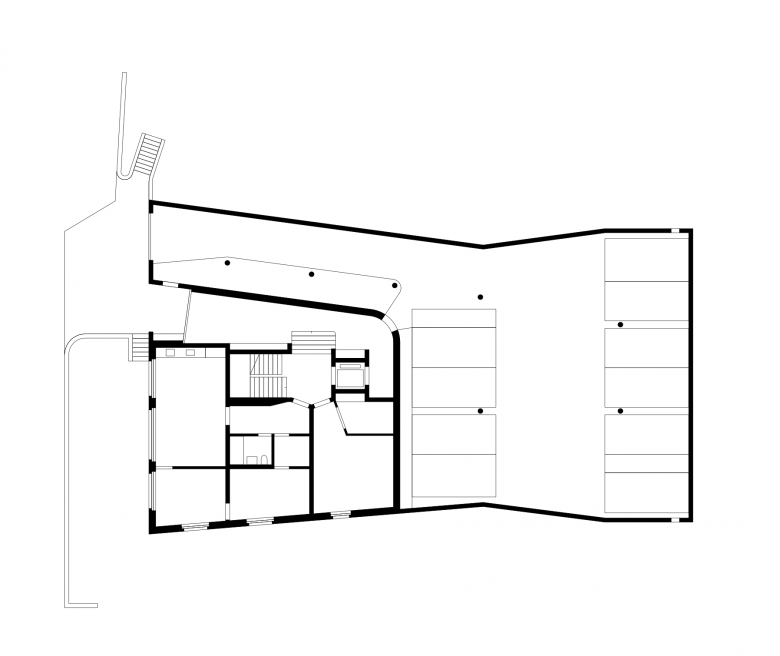
Das zeichenhafte Wohnhaus mit seiner aufgefächerten Dachform steht am Rande eines Wohnquartieres direkt am Wald. Leicht erhöht öffnet sich der Blick in die Baumkronen und zur Abendsonne. Vier Wohnungen sind im Prinzip eines Kleeblattes um ein mittiges Treppenhaus angeordnet. Über ein Vestibül gelangt man in ein Raumensemble aus Wohnen und Essküche. Grosszügige Blickachsen spannen sich übereck auf. Unter dem Schrägdach gibt es Atelierwohnungen mit hohen Räumen. Die Untergeschosse und das Treppenhaus sind in Massivbau konstruiert. Darauf ruhen die Wohngeschosse als tragender Holzbau. Die sichtbaren Balkenlagen und Dachschrägen in Holz prägen die Atmosphäre des Holzhauses.





















