Wu Residence
Hengdian, China
Atelier RIGHT HUB initiated the project by questioning the fundamentals of the “house” typology itself, asking themselves: How can we free up the plan and make it feel light and loft-like? What is the relationship between the communal and private? When and how should privacy be maintained, if at all? What are the essential and non-essential program components that make a “home”? What is domesticity?
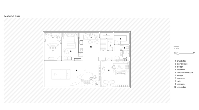
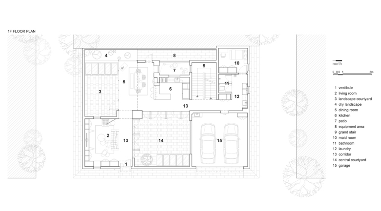
According to our homestead location and area, from the building volume, space, color, light, other aspects of modern minimalist design languages and the oriental elements. We integrate the main parts of the buildings into the two courtyards, to separate the public space units from the private space units. 11 full-size glazing doors not only divide the interior space of the building and the courtyard, but also make the inside and outside space blend. Likewise, the house spills into the garden and occupies part of the outdoor spaces to enable a closer connection with nature. The filtered light from the glazing doors built-in teak shutters allows the interior space to render the flowing texture of the time. 3 patios distribute in outdoor space of 1f floor, which let the underground space in the daytime can get enough natural lighting. Each of the 2 courtyards has 1 glass patio, and automatic glass skylight can meet the indoor and outdoor air circulation. We create 3 quite Zen landscape, which locate next to the dining room and patios below.
The overlapping building/courtyard concept plays on the conventional notions of “building” and “courtyard” by treating each as a “layer” and overlapping them to create interesting domestic spaces for a house complex, by segmenting and recombining. The interior space design is separated from the axis block, which simplifies the interface processing. Each functional space is connected by a “wooden box” and a “glass box”, and the boundaries of inside/outside, exterior/interior, land/house, private/public are blurred to create a house that is a complex spatial experience, bringing into question conventional notions of habitation, climate, privacy, and family.
Wu Residence is an individual house including architectural design, landscape design, interior design and FF&E selecting and specifying of a whole design project. This project is located in Hengdian, a town in Zhejiang province devoted to the movie business.
Our design concept about Wu Residence based on the inheritance and innovation of Chinese traditional culture, and combined with western design aesthetics, which provide a more international perspective of architecture and interior design. So this project as the homestead self-built is obviously unique and beautiful compared with other local residential buildings, and it even has broken the existing situation of the ugly appearance in local contemporary residential houses and become the guiding model of homestead self-built project in Hengdian town.
Meanwhile, the design concept and result of Wu Residence follows the present policy of new rural construction in China, and the village and town government has organized local people who have the demand of self-building houses to visit and study Wu Residence many times. In addition, many well-known directors, actors and singers have visited and shot in Wu Residence, including such as Zhangliang who is the international supermodel and Li Shengjie who is the famous Taiwanese singer, etc. All of these make Wu Residence highly influential in Hengdian town as well.
- Architecten
- Atelier Right Hub
- Jaar
- 2018
- Projectstatus
- Built
- Klant
- Private
- Team
- Gong Jian, Liu meng, Shao Pengcheng, Wang Jingyi































