Zu- und Ersatzneubau für die STS Walddörfer
Die 6-zügige STS befindet sich im Hamburger Stadtteil Volksdorf in unmittelbarer Nachbarschaft zum Walddörfer Gymnasium. Zurzeit besuchen ca. 1280 Schülerinnen und Schüler die Schule. In der direkten Nachbarschaft im Süden befindet sich das denkmalgeschützte Walddörfer Gymnasium, das 1931 nach den Plänen von Fritz Schumacher fertiggestellt wurde.
Sitznischen und großzügige Lernzonen
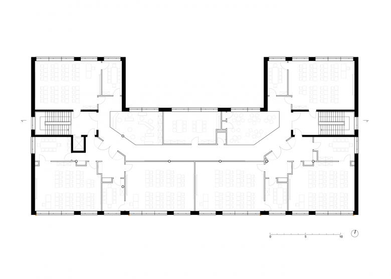
rimpf Architektur realisierte den vorgesehenen Zu- und Ersatzbau als Solitär auf dem freiwerdenden Baufeld nach Abriss des Gebäudes 02. Erdgeschossig wurden eine Mensa mit angeschlossener Cafeteria und Kiosk sowie die dazugehörigen Nebenräume geplant. Die Szenefläche in der Mensa erhielt ein fest eingebautes Podest. Im Obergeschoss befinden sich auf einer Ebene 6 Klassenräume mit je angeschlossenem Differenzierungsraum. Rimpf Architektur teilte die Flächen in Compartments < 200qm und konnte dadurch entlang der Fluchtwege Flächen für Sitznischen und großzügige sowie zentrale Lernzonen ausweisen.
Regen geschützte Schulhof- und Aufenthaltsflächen
Durch die unterschiedlichen Flächenanforderungen an Erd- und Obergeschoss lässt der Entwurf von rimpf Architektur das Obergeschoss zum Schulhof an beiden Enden auskragen, das dadurch Regen geschützte Schulhof- und Aufenthaltsflächen ermöglicht.
Das Gebäude wird baurechtlich im Erdgeschoss als Versammlungsstätte bewertet. Mit Erstellung des Brandschutzkonzeptes wurde die Einstufung des Obergeschosses als Gebäude der „Gebäudeklasse 3“ bewertet.
Warme natürliche Materialien wie Verblendziegel und Holz-Alu-Fenster
Das Gebäude wurde in massiver Bauart errichtet und die Außenfassade mit rotbraunen Verblendziegeln verkleidet. Die Fenster und Fassaden wurden als Holz-Aluminium-Isolierglasfenster eingebaut. Die Glasfassade im Erdgeschoss besteht aus wärmeschutzverglasten Fensterelementen, teilweise mit Lamellenfenstern zur natürlichen Querlüftung. Diese wird mechanisch gesteuert und bildet die notwendige mechanische Be- und Entlüftung für die Nutzung als Mensabereich respektive Versammlungsstätte. die Fußböden in Innenbereich erhielten im Wesentlichen Linoleum Beläge, die Wände wurden hell gestrichen. Im Gebäude wurden reversible Abhangdecken eingebaut, um die erforderliche Akustik für den Schulbau zu erreichen.
- Jaar
- 2018
- Projectstatus
- Built








