Doppelkindergarten Dietikon
Die Schulanlage Steinmürli ist ein Cluster von orthogonal angeordneten Schul- und Turnhallenbauten. Ein klares Setzungsprinzip der Gebäude schafft differenzierte Aussenräume. Rechtwinklig zu den Bestandsbauten gesetzt integriert sich der neue Kindergarten auf selbstverständliche Weise in die Gesamtanlage. Das Neubauvolumen wird entlang der östlichen Grenze des Perimeters angeordnet. Durch diese Situierung werden die Freiräume neu gegliedert und es entsteht ein gut besonnter und grosszügiger Aussenspielbereich zwischen dem bestehenden Kindergarten und dem Neubau.
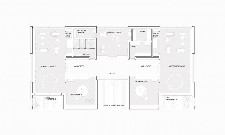
Der Zugang zum neuen Doppelkindergarten erfolgt über eine flache Rampe, wodurch der Übergang zwischen dem Aussenspielbereich und dem Gebäudeinneren erlebbar wird. Über die gedeckte Eingangszone gelangt man in den inneren Erschliessungs- und Garderobenbereich des Kindergartens. Der Grundriss ist spiegelsymmetrisch konzipiert. Die beiden Hauptkindergartenräume befinden sind jeweils an den Gebäudequerseiten und erstrecken sich über die gesamte Gebäudetiefe. Somit profitieren sie von einer dreiseitigen Belichtung. Die vorgelagerten Loggiabereiche komplettieren das Angebot der Spiel- und Lernlandschaft. Eine Sequenz von Höhenversprüngen der Decke ist das prägende Element der Innenräume. Die Haupträume (Eingang, Mehrzweckraum, Kindergartenraum) weisen eine lichte Höhe von 3.20m auf, die untergeordneten Räume eine Höhe von 2.60m. Die Differenzierung der Innenräume schafft eine spannungsvolle Raumabfolge und macht die Hierarchisierung der Nutzungen beim Durchschreiten erlebbar.
- Jaar
- 2019
- Projectstatus
- Built
- Klant
- Stadt Dietikon
- Team
- Magdalena Pikali (PL), Leonardo Strollo, Rafael Schmid, Mark Ziörjen
- Landschaftsarchitektur
- Rosenmayr Landschaftsarchitektur GmbH BSLA, Zürich
- Holzbauingenieur
- Makiol Wiederkehr AG, Beinwil am See
- Baumanagement
- Ziörjen Baumanagement GmbH, Zürich
















