Shenzhen Bay Gallery
This building, a private clubhouse and gallery for high-end residential development in the Shenzhen Bay area, is conceived as a composition of two intersecting masses. The first volume, located to the north, is an open, double height gallery space with generous light and views. The second volume, a longer and lower mass to the south, incorporates most of the building program and is defined by a more solid façade that promotes a sense of privacy and dignified calm. The two masses are unified by a perforated copper façade that lends warmth to the building, controls views and light via perforations, and adds visual texture to the project’s refined massing.
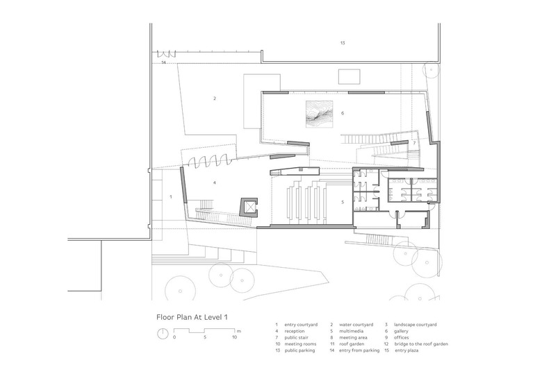
The project is designed as a contemplative sequence of spaces, beginning with a planted landscape area to the south of the building which leads to a stone courtyard and reflecting pool, from which the building’s main entrance is accessed. This sequence continues into the interior of the building, starting with a reception area and multimedia space, after which visitors enter the gallery volume, which features a sculptural concrete shell and a perforated copper façade that allows light to penetrate the space.
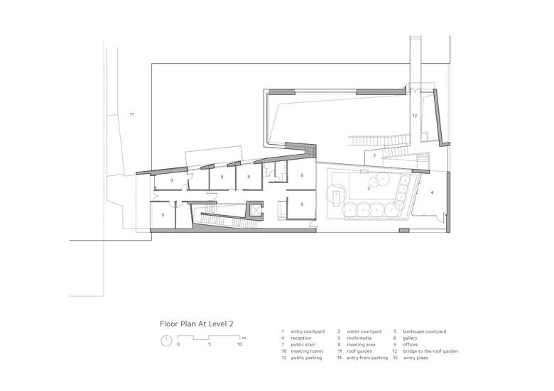
A sculptural staircase and viewing platform, located between the two main volumes, allows visitors to either exit the building via a bridge into a park to the north or to continue south to a private courtyard located on the building’s second floor. This courtyard, defined by translucent glass walls and quiet plantings, extends the interaction between the building and the site by drawing the landscape further into the building. After the courtyard, visitors are led to a suite of contract signing rooms which enjoy views of the residential towers to the north of the site. From this point, visitors can exit the building into a landscaped park, concluding the experience of the project.
- Jaar
- 2016
- Projectstatus
- Under Construction
- Klant
- China Resources Land Limited
- Team
- Yichen Lu, Qinwei Cai, Ching-Tsung Huang, Dongyul Kim, Alban Denic, Jose Silva, Zifan Liu, CHen Hu


















