Umbau & Sanierung Eulerstrasse
In der Nachbarschaft der Synagoge zeigt sich die Eulerstrasse als intakten, denkmalgeschützten Strassenzug der Jahrhundertwende. Das denkmalgeschützte Gebäude wurde in den 70er Jahren aufgestockt und die Fassade entstellt. Die Sanierung/Rekonstruktion der Fassade wurde bereits 2017 von Superdraft Studio vorgenommen. In einem weiteren Schritt folgte nun der Innenumbau des Gewerbe im Erdgeschoss sowie der darüber liegenden Wohngeschosse.
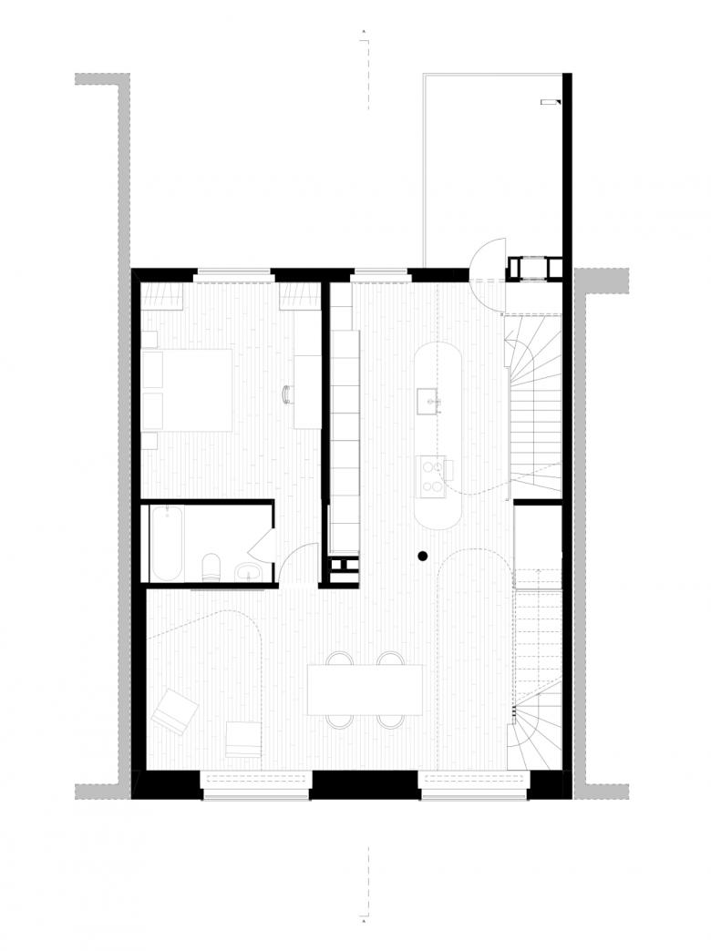
Die bestehende Bürofläche im Erdgeschoss wurde um das Untergeschoss erweitert und mittels einem zentral positionierten Funktionskern zoniert. Im 1.Obergeschoss beginnt der Wohnbereich der Bauherrschaft. Die 100 jährige Struktur wurde brandschutztechnisch sowie akustisch an die aktuellen Gesetzmässigkeiten angepasst. Ein Fischgrätparkett und die sanierten Stukaturen geben den Räumen den alten Charme zurück.
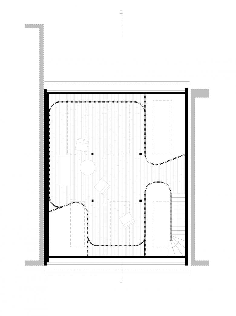
Ganz besonders sticht der bauliche Eingriff im Wohnbereich der Bauherren im 2.OG heraus. Wie ein Band ziehen sich Holzlamellen über die Treppe in den ehemaligen Estrichbereich, der nun mittels ovalförmiger Deckenausschnitte den Wohnraum erweitert und aussergewöhnliche Sichtbezüge schafft.
- Jaar
- 2021
- Projectstatus
- Built










