Cape Electrical
CAPE ELECTRICAL
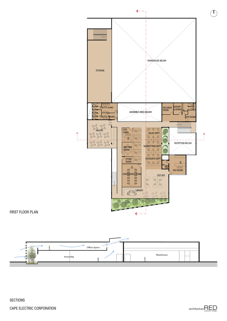
The Cape Electrical Corporation is an Industrial facility with its phase one proposed on a 2 acre property at Oragadam. The building integrates both the management facility and the warehousing needs of the client.
The design is envisaged with the future proposal of both vertical and horizontal expansion of the facility. The first floor slab of the offices above is conceived as a floating slab with the ample openings to allow natural light and ventilation. The outer skin acts as an opaque wrap over the building, with the louvre extending out as a lucid skin. The louvered landscape acts as a transition from the outdoor landscape to the interior workspace. The PEB structure is designed as a modular system allowing for uniform future expansion.
- Status do projeto
- Built




