Auszugshaus im Garten

Taufkirchen/Pram, Áustria

Was machen, wenn in einem Einfamilienhaus plötzlich alle Kinder erwachsen sind und voraussichtlich bleiben wollen? Die Einen stocken auf, die Anderen bauen an. Oder man macht’s wie am Bauernhof, wo ein Auszugshaus dazu gebaut wird, in das sich die ältere Generation zurückziehen kann. Das war auch hier die Lösung. Zum Familienbungalow wurde ein neues Holzhaus auf das große Grundstück dazugestellt.

Der elegante Pavillon ist maßgeschneidert auf die Bedürfnisse der Eltern: Zimmer in diesem Sinn gibt es nicht, schon eher ist das ganze ein kleines, offen geschnittenes Loft mit verschiedenen Zonen. Ein Sanitärblock in der Mitte, zwei frei angeordnete Nebenräume und Schiebeelemente erlauben Settings nach Lust und Laune. Raumhohe Verglasungen schaffen einen Rundumblick in den Garten. Das weit auskragende Dach schützt vor Sonne und Regen. Barrierefreiheit versteht sich von selbst.

Das Haus wurde zur Gänze in höchster Präzision vorgefertigt. Wände und Decken bestehen aus KLH-Platten. Die Oberflächen wurden innen weiß, außen schwarz lasiert. Die Fenster sind aus Lärche. Das weit auskragende Dach bietet einen geschützten Außenbereich und dient dem konstruktiven Holzschutz. Keller gibt es übrigens keinen.

Photo © Violetta Wakolbinger
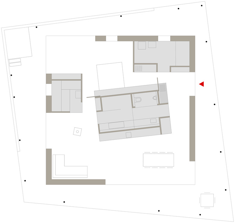
Grundriss
Drawing © Bogenfeld Architektur
Schnitt
Drawing © Bogenfeld Architektur
Ano
2014
Status do projeto
Built

Outros projetos por Bogenfeld Architektur 

Wohnen am Weinberg
Weinberg, Áustria
Hofhaus Niederweng
Trattnach, Áustria
Stadthaus Innsbruck
Innsbruck, Áustria
Campagne Areal - Baufeld 1 der Quartiersentwicklung
Innsbruck, Áustria
Bâtiment F
Attersee, Áustria