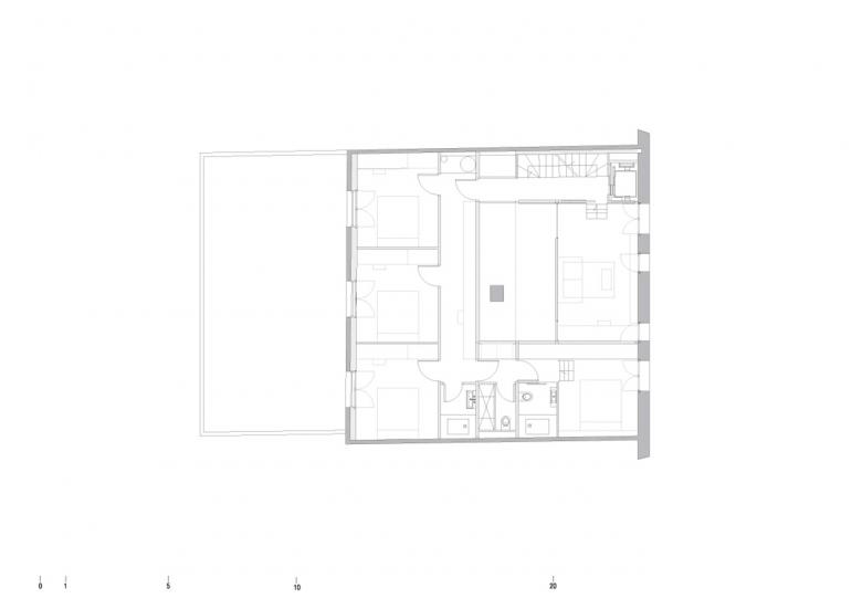
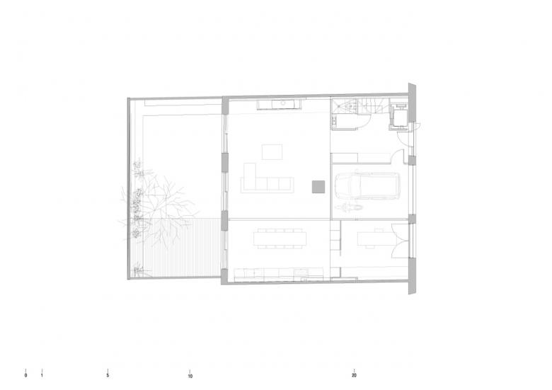
La vaqueria
Last Old dairy farm in Barcelona converted in one single house. High standard finishes. In collaboration with Marc Mazeres Architect.
- Ano
- 2013
- Status do projeto
- Built
- Equipa
- Eva Cotman, Wilson Melo, Miquel Angel Perez, Greek sl
- Co Author
- Marc Mazeres



















