EFH Hermannstrasse

Photo © Ursula Lischi
Photo © Ursula Lischi
Photo © Ursula Lischi
Photo © Ursula Lischi
Photo © Ursula Litschi
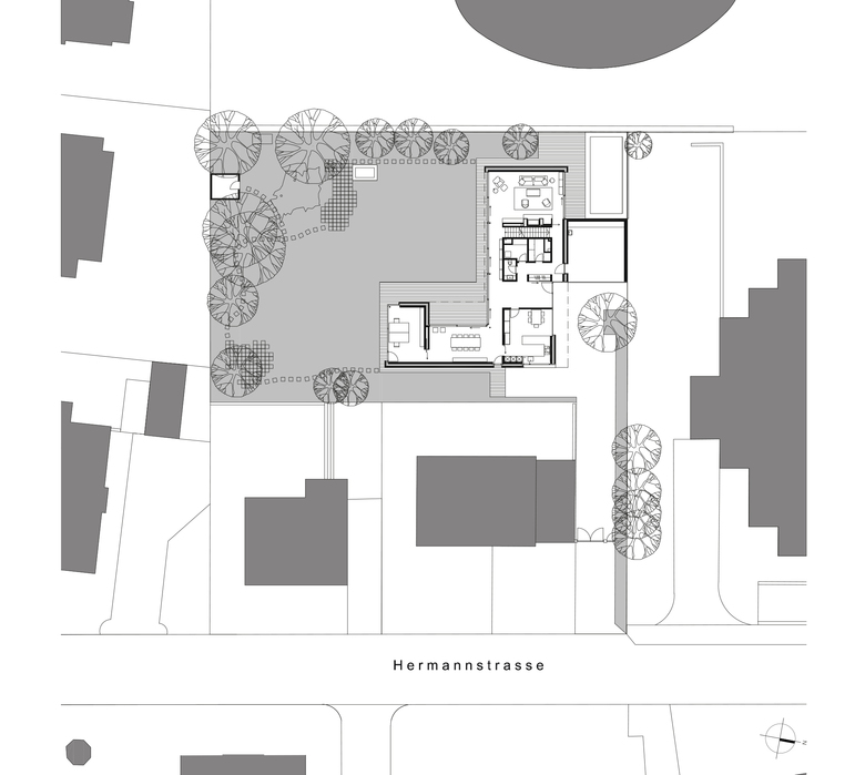
Drawing © DHPA
Ano
2013
Status do projeto
Built

Outros projetos por Dahinden Heim Partner Architekten AG (DHPA) 

Umbau Villa Schönfels
Uetikon am See, Suíça
Arealüberbauung «Kasernenstrasse»
Bülach, Suíça
Terrassenhäuser «Am Lindberg»
Winterthur, Suíça
Schulanlage «Im Dorf/Feld»
Kloten, Suíça
Arealüberbauung «rudolfstrasse.ch»
Winterthur, Suíça