The New Bund School of No.2 Secondary School of East China Normal University
The New Bund School, which combines nine-year system primary and secondary schools with kindergarten, is located in Riverside International Community in the southwest of Shanghai New Bund International Business District. Although the school plot is large, the plot ratio is close to 1.5, which will certainly make it a high-density campus. Therefore, the design of the New Bund School needs to effectively respond to the urban public environment on a macro-scale, while on the micro-scale, it needs to form a campus environment with efficient spatial organization and convenient communication based on the demand for horizontal and vertical spatial compounding.
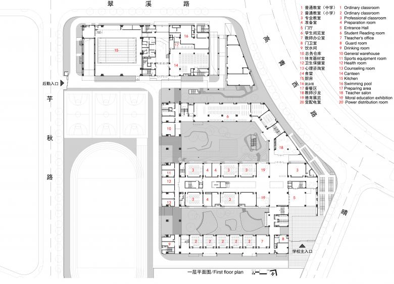
According to the surrounding urban spatial relationships, the playground is designed to be located in the southwest of the campus. The whole campus is divided into five relatively clear functional areas from south to north, namely, Department, Primary School Department, Comprehensive Teaching Department, Junior High School Department and Sports & Recreation Department. The challenge lies in how to create the composite and shared use of different functional areas on the premise of meeting the functions of various parts and streamlining rationality. The ultra-high spatial density of New Bund School urges us to define this composite campus space with two types of space: platform and courtyard.
- Ano
- 2018
- Status do projeto
- Built





















