SRF Next

Zurich, Suíça
Ansicht Nord
Schnitt
Schnitt
Schema Tragwerk
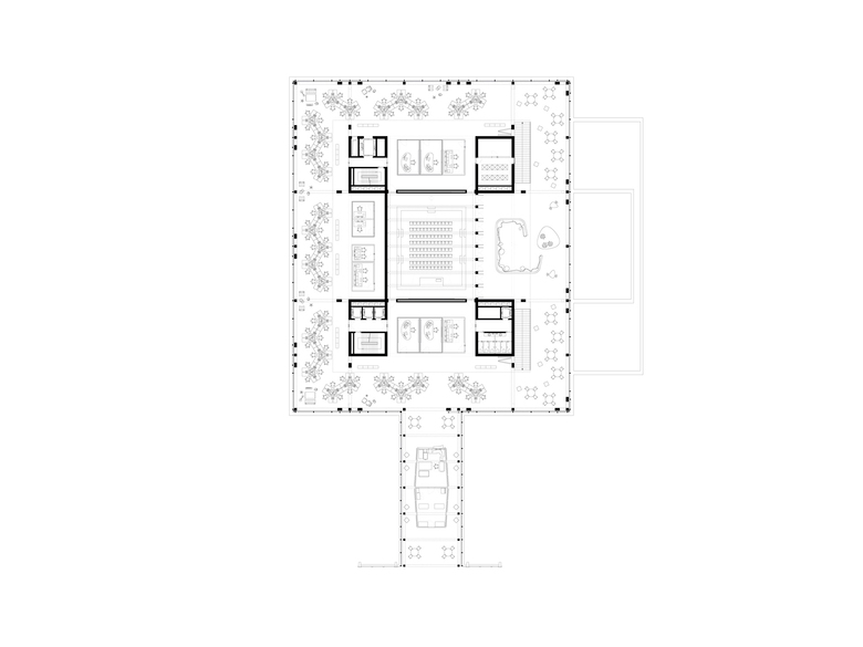
Erdgeschoss
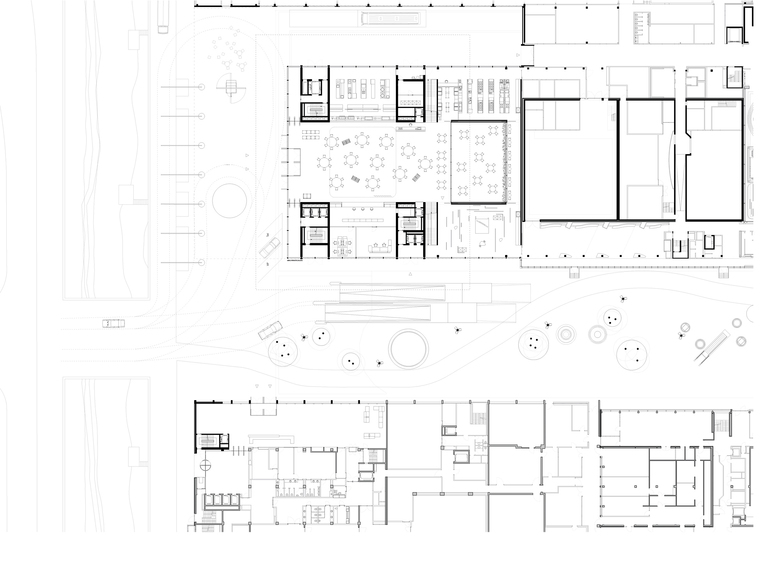
Obergeschoss 1
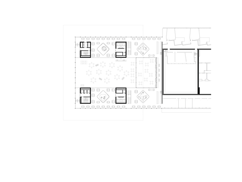
Obergeschoss 2
Obergeschoss 3
Obergeschoss 4
Ano
2017
Status do projeto
Design
Cliente
SRF Next - Schweizer Radio und Fernsehen SRF
Equipa
Pia Durisch, Aldo Nolli, Pierre-Jean Holl, Alessandro Mazzucchini, Niccolò Nessi, Francesco Nozzi, Francesco Parisi
Bauingenieurwesen
Schnetzer Puskas Ingenieure AG
Projektmanagement / Bauökonomie
Caretta + Weidmann Baumanagement AG
Landschaftsarchitektur
Westpol LandschaftsArchiteketur
Gebäudetechnick + Bauphysik + Raumakustik + Brandschutzplanung
Amstein + Walthert AG
Fassadenplanung
Emmer Pfenninger Partner AG
Digital Experience
EPFL + ECAL Lab
Communication Ideas
Pink Squirrel GmbH

Outros projetos por Durisch + Nolli Architetti 

FHZGR Fachhochschulzentrum Graubünden
Coira, Suíça
Loft B
Riva San Vitale, Suíça
Kloster S. Maria Assunta
Claro, Suíça
Verwaltungszentrum VBS Bern
Bern, Suíça
Stabile Amministrativo
Lugano, Suíça