Karree St. Marx - Viehmarktgasse
Das Projekt wurde vom Masterplan bis zum Hochbaudetail von Geiswinkler & Geiswinkler bearbeitet.
Auf dem Gebiet des ehemaligen Schlachthausviertels, einer städtischen Wildnis, entsteht ein neues Stadtviertel.
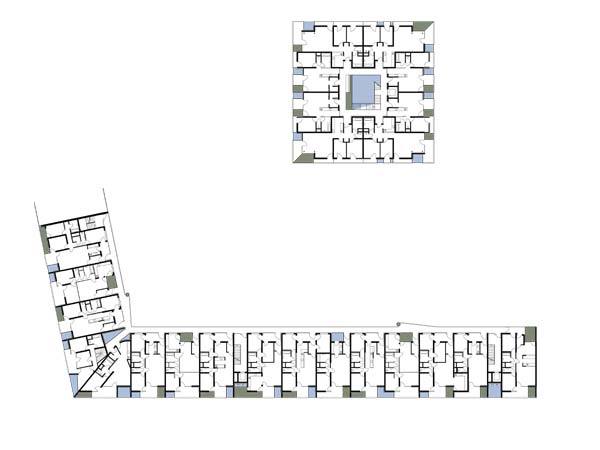
Schwebend über einer durchgängigen Parklandschaft finden sich Stadtvilla und L-förmiger, straßenbegleitender Riegel.
Die Gebäudetypologie als „gestapelte Stadt“ erlaubt hohe Grundrissvielfalt.
2-geschossige „Vertikalgärten“ sind durch 30 cm Humusschicht individuell bepflanzbar und prägen die Terrassenstrukturen.
Die gemeinschaftlichen Freiflächen befinden sich auf den Flachdächern der jeweiligen Wohngebäude.
Eine modulare Grundrissstruktur garantiert Flexibilität und variable Gestaltungsmöglichkeiten.
- Ano
- 2009
- Status do projeto
- Built









