Brainergy Hub
Der Brainergy Hub in Jülich ist das Herzstück eines neuen Innovationsparks für Unternehmen und Startups, die sich nachhaltiger und erneuerbarer Energien, der Bioökonomie und Digitalisierung widmen. Als markanter Rundbau gestaltet, dient der Hub als soziales Wissenszentrum für den Brainergy Park und verkörpert zugleich den Wandel hin zu erneuerbaren Energien und einer grünen Zukunft. Der Neubau veranschaulicht exemplarisch das Potenzial der modularen Holz-Hybridbauweise – und vereint dabei innovativ eingesetzte Materialien, Formen und Technologien.
Der Hub ist eingebettet in einen lebendigen Park. Dessen vielfältiges natürliches Biotop trägt dazu bei, das Mikroklima zu regulieren und Hitzeinseln der umliegenden Gebäude zu mindern. Ein neu angelegter See dient als Rückhaltebecken für Regenwasser des gesamten Brainergy Parks.
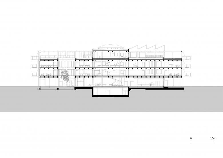
Mit seiner Kreisform richtet sich der Brainergy Hub im Zentrum des Parks gleichwertig nach allen Seiten. Innerhalb des Kreises bilden modulare Einheiten eine „Pixelwolke“, die in den oberen Geschossen durch drei Balkonringe umschlossen wird. Diese Struktur ermöglicht eine einfache Unterteilung und eine spielerische Anordnung von Innen- und Außenräumen. Das rationale Raster wird durch ein großes zentrales Atrium und kleinere Innenhöfe variiert. Diese sind zwei bis drei Geschosse hoch und bieten den Mitarbeitenden überall im Gebäude frische Luft und Tageslicht. In die Fassade sind innovative, „atmende“ Lüftungseinheiten integriert, die eine hohe Raumluftqualität gewährleisten.
Das modulare System bietet Platz für mehrere kleinere Unternehmen, deren Mitarbeitende in gemeinschaftlich genutzten Räumen rund um das zentrale Atrium zum Co-Working und informellen Austausch zusammenkommen können. Eine großzügig gestaltete Wendeltreppe führt Besucher*innen durch diesen kommunikativen Raum, während zusätzliche Außentreppen als Abkürzungen für die Mitarbeitenden dienen und die Büromodule auch von den Balkonringen aus unabhängig zugänglich machen. Im obersten Geschoss befinden sich mietbare Event-Räume mit Dachterrasse. Das zurückversetzte Erdgeschoss des Hubs schafft eine prägnante Nord-Süd-Achse auf dem Grundstück, welche den See im Norden und einen Obsthain im Süden miteinander verbindet.
Der Brainergy Hub ist als Holz-Beton-Hybridstruktur konstruiert und setzt damit auf natürliche, klimafreundliche Baumaterialien. Die hölzernen Stützen und Träger bleiben bewusst sichtbar und schaffen zusammen mit Holzbekleidungen in den Innenräumen eine warme, natürliche Atmosphäre. Mit kräftigen Farben und großflächig eingesetzter Typographie setzt das Interior Design zugleich eigene Akzente.
Der Hub ist an das LowEx-Netzwerk angeschlossen, einem Nahwärmenetz, das die Ansiedler parkweit versorgt. Auf dem Dach und an der Fassade sind Photovoltaik-Paneele zur Energiegewinnung angebracht – überschüssig produzierte Energie wird in einem Energiespeicher im Gebäude für eine spätere Nutzung vorgehalten.
Über den gesamten Entwurfs- und Planungsprozess hinweg wurde die CO2-Bilanz des Projekts berechnet und ausgewertet – in Bezug auf den gebundenen Kohlenstoff wie auch den Verbrauch im Betrieb. Diese Daten bestimmten Designentscheidungen mit und stellen sicher, den ökologischen Fußabdruck des Gebäudes so klein wie möglich zu halten.
- Ano
- 2027
- Status do projeto
- Under Construction
- Cliente
- Brainergy Park Jülich GmbH
- Equipa
- Thomas Quisinsky, Dirk Breuer, Ona Forss, Silvia Forster-Golm, Frank Gebler, Lars Gilz, Justus Honigbaum, Rachna Kothari, Emiliano Lupo, Axel Mierisch, Anatolii Romanov, Michael Sadomskyj, Olha Todosiychuk, David Webb, Sam Weston, Cansu Yeni, Daniel Festag, Martin Henn, Alexandra Berger, Giovanni Betti, Sandra Dehli, Leticia Duque-Llerandi, Maciej Elert, Oliver Franke, Denise Gellinger, Lorenz Harzer, Marcin Kropidlo, Jan-Philipp Maiwald, Gencay Maurer, Fabian Reckers, Silvana Scheve, Mira Schröpfer, Ine Spaar, Nikitas Vrotsos
- Tragwerk, Technische Gebäudeausrüstung
- Buro Happold
- Landschaftsplanung
- Latz + Partner
- Brandschutz
- hhp Berlin
- Bauphysik – Wärmeschutz, Bau- und Raumakustik, Medienplanung
- Müller BBM
- Küchenplanung
- K & P Planungsbüro GmbH
- DGNB-Zertifizierung
- Kempen Krause Ingenieure
- Fassade
- Schöne Neue Welt Ingenieure
- IT-Technik
- ComConsult
- Medienplanung
- hmpartner
- Signaletik
- Büro Uebele























