Fleet 3
Olaf Behrens, Erbe der Behrens-Werft in Finkenwerder, ist ein Unternehmer mit Visionen. Statt damit zum Arzt zu gehen, wie Helmut Schmidt empfohlen hätte, vertraute er sich dem Architekturbüro KBNK an.
Frühzeitig hatte Behrens erkannt, dass sich der traditionsreiche Familienbetrieb nur halten ließe, wenn neue Betätigungsfelder erschlossen werden.
Glücklicherweise entschied man sich, den alten, atmosphärisch reizvollen Standort zu erhalten und gemeinsam wurde ein Nutzungskonzept entwickelt, das eine radikale Neuordnung des Werftgeländes vorsah.
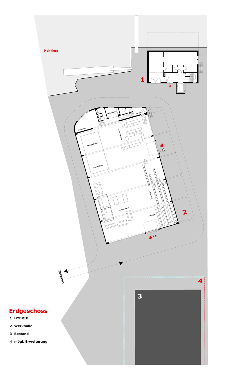
Dazu war vorab eine vierjährige Genehmigungsphase durchzuhalten; umfangreiche Erdarbeiten und diverse Hochwasserschutzmaßnahmen gingen dem Bau voraus. Durch die Aufschüttung der alten Slipanlage entstand ein Werkhof, der nach Westen von der neuen Halle und zur Wasserseite von einem viergeschossigen Nutzungshybrid eingefasst wird.
Das Umfeld ist noch immer von industrieller Charakteristik; alte, mit Ziegel ausgefachte Werfthallen prägen die Umgebung. Die einheitliche Verkleidung beider Neubauten mit signalrotem Trapezblech nimmt dies auf; ihre augenfällige Besonderheit bleibt so mit dem Allgemeinen verbunden.
Der schroff aufragende, betonierte Aufzugsturm des Hybrids bildet das Rückgrat des kubischen Baukörpers; Büros, Studio und Wohnung können sich nach drei Seiten dem Wasser zuwenden. Den Höhepunkt der räumlichen Inszenierung bildet das darüber gelegene Fotostudio, das weit über den Fleet kragt. Riesige Glasflächen gewähren einen atemberaubenden Panoramablick, nach Norden bis zur Elbchaussee.
Die umlaufende Galerie ist für Außenaufnahmen großzügig ausgelegt, die offene Auslegung des Gebäudes bietet maximale Variabilität und erschließt das Potenzial des stimmungsvollen Orts für eine Vielzahl von Aktivitäten.
Die hier zunehmend stattfindenden Hochzeitsfeiern etwa erhalten allein schon durch die Möglichkeit, mit einer Barkasse anlanden zu können, einen besonderen Reiz. Mit Recht meinen die Architekten, dass ihr Projekt durchaus als Initialzündung für weitere Veränderungen des Areals zu einem attraktiven Aufenthaltsort wirken könnte.
©Heinrich Wähning, Architektur in Hamburg Jahrbuch 2005
Kenndaten:
Konversion der Behrens-Werft
BDA Hamburg-Architekturpeis 2005: 3.Preis
Planung: LPH 1-9 (2003-2004)
Realisierung: 2004
Fläche: 1.950 qm BGFa
Baukosten: 3.2 Mio. Euro
Bauherr: Olaf Behrens
Standort: Köhlfleet-Hauptdeich 3, Hamburg
Statik: Ingenieurbüro Abel · Gebhart GmbH & Co. KG, Hamburg
Haustechnik: Elektro: O.N.T. - Elektrotechnik GmbH & Co. KG, Reinbek / Heizung: Karl Schult Haustechnik GmbH, Hamburg
Baugrund: Steinfeld+Partner GbR, Hamburg
- Ano
- 2004
- Status do projeto
- Built









