Umbau und Erweiterung Halle 181

Winterthur
Photo © Jürg Zimmermann

Hase in Gold 2014 / Preisträger AW16

Photo © Jürg Zimmermann
Photo © Jürg Zimmermann
Photo © Jürg Zimmermann
Photo © Jürg Zimmermann
Grundriss EG
Drawing © KilgaPopp
Grundriss 1.OG
Drawing © KilgaPopp
Grundriss 2.OG
Drawing © KilgaPopp
Grundriss 3.OG
Drawing © KilgaPopp
Grundriss 4.OG
Drawing © KilgaPopp
Photo © Jürg Zimmermann
Photo © Jürg Zimmermann
Photo © Jürg Zimmermann
Photo © Jürg Zimmermann
Photo © Jürg Zimmermann
Photo © Jürg Zimmermann
Photo © Jürg Zimmermann
Photo © Jürg Zimmermann
Photo © Jürg Zimmermann
Ansicht Doppelfassade / Längsschnitt
Drawing © KilgaPopp
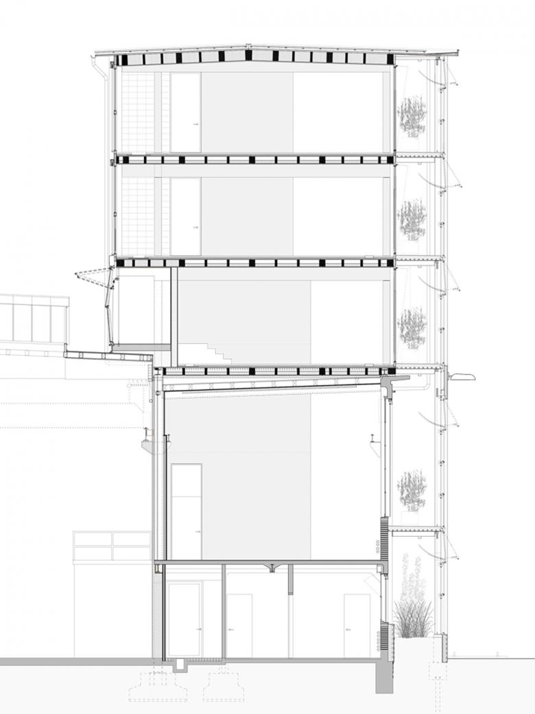
Querschnitt
Drawing © KilgaPopp
Stirnfassade
Drawing © KilgaPopp
Ano
2014
Status do projeto
Built
Cliente
Stiftung Abendrot
Bauleitung
Stadelmann Ramensperger
Landschaftsarchitekten
Krebs und Herde

Outros projetos por KilgaPopp Architekten AG 

Stadthäuser
Winterthur
Wohnhaus Krokodil
Winterthur
Neubau Wohnhaus Neumarkt 5
Winterthur
Sanierung Villa Büel
Winterthur
Neubau Wohnhaus mit Gewerbe am Bahnhof Töss
Winterthur