Neubau Alterswohnungen
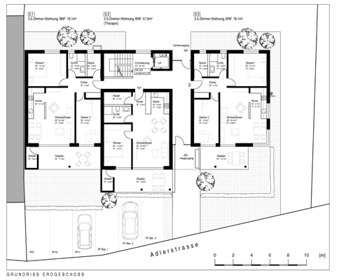
Das Mehrfamilienhaus liegt im Zentrum von Schleitheim, an gut erschlossener Lage. Der Neubau beinhaltet 11 behindertengerechte Mietwohnungen. Die Wohnungsgrössen variieren zwischen 2.5 bis 4.5 Zimmern. Das Haus umfasst ein Unter-, Erd-, 1./2. Ober- und ein Dachgeschoss. Im Norden hinter dem Wohnhaus liegt ein Carport, dieser bildet den Abschluss zum kanalisierten Schleitheimerbach. Grosszügige Balkone sind nach Süden zur Adlerstrasse angeordnet. Der Neubau schliesst an die bestehende Häuserzeile an.
- Ano
- 2012
- Status do projeto
- Built






