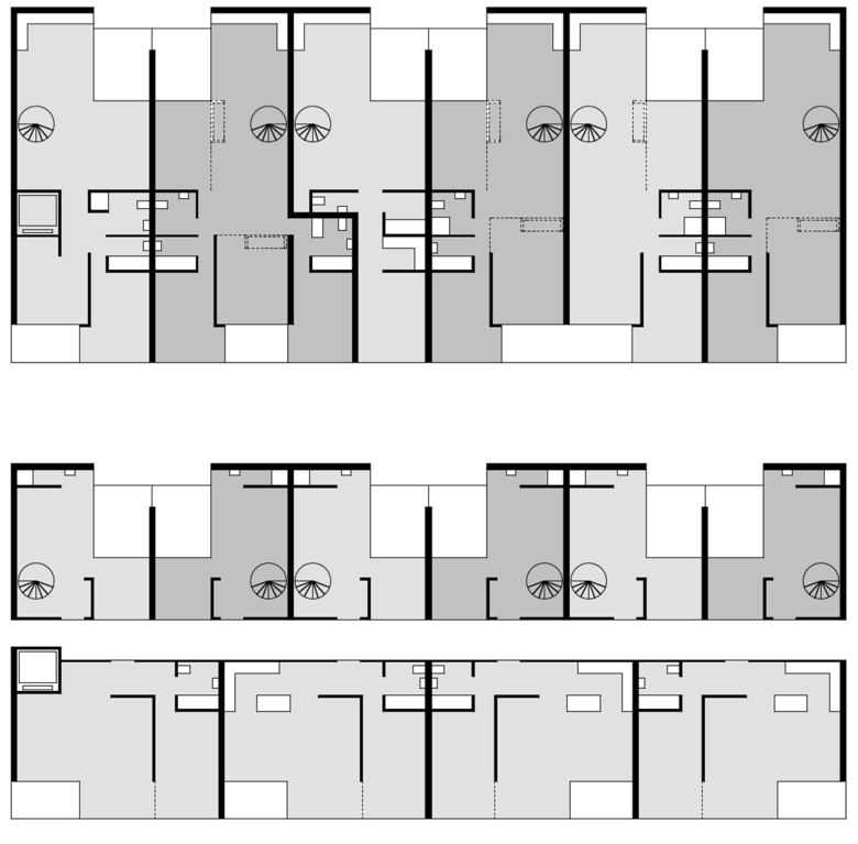
ASPAN Logements urbains en zone de bruit
Servette, Genève, Suíça
Concours ASPAN 1 er prix pour la Suisse site Genève. 70 logements, ateliers d'artistes, locaux services sociaux, commerces
- Arquitectos
- Giovanoli-Mozer architectes
- Ano
- 1990
- Status do projeto
- Design










