Augenklinik KSLU
Spitalstrasse, Luzern, Suíça
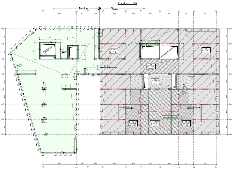
Modernisierung des bestehenden Gebäudes (Inbetriebnahme 1975). Zusätzliche Erdbebenaussteifung im Bestand über vier regelmässig angeordnete Stahlbetoninnenwände. Flexiblere Raumstrukturen durch Tragwerksoptimierung mittels neuen Stahl- und Stahlbetonunterzügen wie auch aufgeklebten CFK-Lamellen.
Betoninstandstellungen an der Tragstruktur.
Sechsgeschossiger Erweiterungsbau mit Büros, Operationssälen sowie zwei Untergeschosse.
Erdbebenaussteifung über fünf regelmässig angeordnete Innenwände und Verbund der Deckenscheiben über Stahllaschen mit dem bestehenden Gebäude.
Statisch sehr effiziente Struktur mit Flachdecken und regelmässigem Stützenraster.
Eine 60cm starke vorgespannte Abfangdecke über dem zweiten Untergeschoss ermöglicht eine Auskragung über drei Meter des südlichen Teils des Gebäudes.
Baugrube mit steiler Böschung im Fels. Im Bereich des Lockergesteins und stark verwitterten Felsen Sicherung mittels Nagelwand. Ausführung einer Flachfundation auf Fels, lokal ergänzt mit Kleinbohrpfählen und Magerbetontatzen.
Anbau und Umbau unter laufendem Klinikbetrieb in Rochaden, entsprechendem Erschütterungskonzept während des Operationsbetriebs und paralleler Asbestsanierung.




