Baumhaus – Umbau Mehrfamilienhaus
Geiselweidstrasse, Winterthur, Suíça
AUSGANGSLAGE
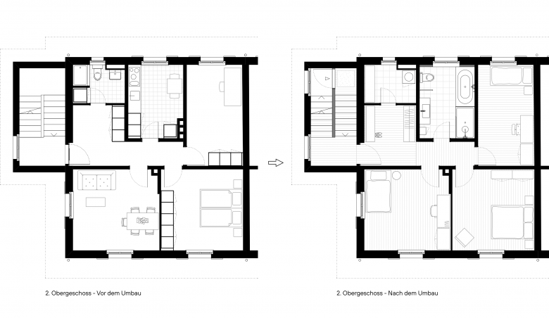
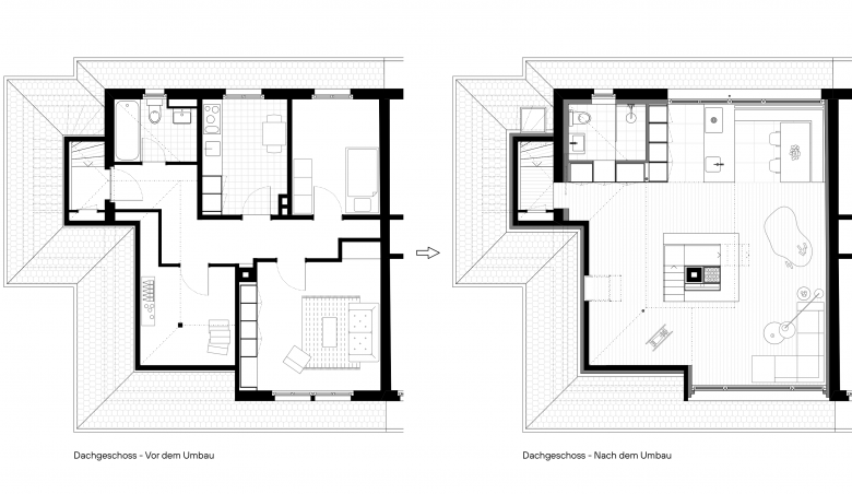
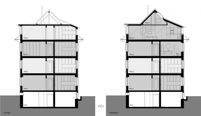
Die Bauherrschaft erwarb vor wenigen Jahren das kleine Mehrfamilienhaus, mit dem Gedanken, dereinst selbst im Haus zu wohnen. Um genügend Platz zu haben, war es der Wunsch, das 2. Obergeschoss und das Dachgeschoss zu ihrer Familienwohnung zusammenzufassen.
KONZEPT
Der Struktur des Hauses und dem Budget entsprechend entschieden wir uns, das 2. Obergeschoss in seiner Raumstruktur grösstenteils zu belassen und die privaten Schlafzimmer dort unterzubringen, während wir das verwinkelte und düstere Dachgeschoss von seiner Kammerung befreiten und zum offenen, luftigen Wohnraum umgestalteten. Um den zentralen, schräg durch den Raum verlaufenden Kamin im Dachgeschoss entwickelten wir ein Möbel, welches Raumgliederung, Stauraum, Sitzlandschaft sowie Treppe zur «Sternwarte» ist, von wo man wunderbar den Himmel beobachten kann. Beim Blick aus den Fensterbändern im Dachgeschoss befindet man sich inmitten der Blätter der jahrhundertealten Bäume der Seidenstrasse und der gartenseitigen Parkanlage, wodurch ein Gefühl vom Wohnen im Baumhaus aufkommt.
- Arquitectos
- Orso Studio
- Ano
- 2021
- Status do projeto
- Built
- Cliente
- Privat
Projetos relacionados
Revista
-
-
A Construção da semana
The Three-Body Problem: Trapped in a Wave Sandwich
Eduard Kögel, Scenic Architecture Office | 13.04.2026 -










































