Bürgerservicezentrum Ossiach
Ossiach, Áustria
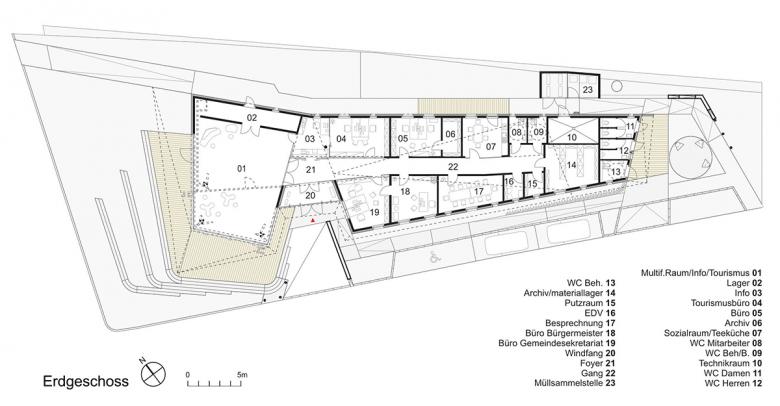
Konzept – Das neue Bürgerservicezentrum für Ossiach ist als eingeschossiger Pavillonbau in die Landschaft platziert. Es wurde ein demokratischer, teilweise transparenter Baukörper konzipiert und ausgeführt der sich im Wesentlichen in 3 Bereiche gegliedert. Den Eingangs-, Foyer- und Infobereich, den Infobereich Tourismus sowie den administrativen Bereich.
Vierfach Grundstücksstrategie – Das neue Bürgerservicezentrum ist auf der freien Wiese im Nordwesten des Grundstückes platziert, eingeschossig, wie ein Pavillon im Park, um:
* den neuen Hauptplatz Ossiachs und das neue Bürgerservicezentrum zum städtebaulichen Schwerpunkt im Bestand zu machen (Stift versus umgebende Bebauung)
* den Parkplatz voll funktionsfähig zu belassen bis der Hauptplatz in einer weiteren Phase realisiert wird
* die Sichtbeziehung zum See zu maximieren
* die freie Sicht zum Stift zu erhalten - eingeschossiger Baukörper parallel zur Pappelallee
Interne Organisation – Besucher betreten das Gebäude durch die Lobby und werden am Infopoint empfangen. Linkerhand öffnet sich der multifunktionale, zum See orientierte, transparente Infobereich Tourismus. Tourismusaktivitäten, Öffentliche Veranstaltungen, Trauungen, sowie Ausstellungen können in diesem Raum stattfinden.
Durch mobile Schiebewände können je nach Saison, Tageszeit oder Besucherzahl unterschiedliche Raumkonfigurationen inszeniert werden. Ein gleich an den Saal anschließender Lagerraum ermöglicht eine flexible und schnelle Bestuhlungs- bzw. Ausstattungsänderung in kürzester Zeit. Weiters ist es möglich, mittels großen Faltschiebewänden die Fassade einladend zu öffnen und den Außenraum mit seinen großen überdachten Terrassen mit dem Innenraum zu verbinden.
Neben dem Infopoint, abgetrennt durch eine Glastrennwand, befindet sich das Tourismusbüro mit freiem Blick in den Infobereich Tourismus und direktem Blickkontakt zur Eingangszone.
Der administrative Bereich mit seinen Räumlichkeiten für Bürgermeister, Amtsleiter, Sekretariat, den Archiven und Nebenräumen beinhaltet auch einen Sozialraum mit eigenem außenliegenden Terrassenbereich.
Im nordöstlichen Teil des Baukörpers befinden sich weiters noch, die nur von Außen zugänglichen, öffentlichen Besuchertoiletten.
Tourismus-BürgerServiceZentrum mit Mehrwert – Der multifunktionale Infobereich Tourismus ist aus dem administrativen Raumverband gelöst und direkt vom Foyer erschlossen - dies schafft eine ungeahnte Nutzungsvielfalt = Tourismus- und Bürgerservicezentrum mit Mehrwert.
- Arquitectos
- SHARE architects
- Ano
- 2013
- Status do projeto
- Built
- Cliente
- Gemeinde Ossiach
- Landschaftsarchitektur
- YEWO landscapes














