Büroumbau Sobi
Basel, Suíça
Für das international tätige Biotechunternehmen Sobi, das sich auf die Behandlung seltener Erkrankungen spezialisiert hat, durften wir zwei Bürogeschosse im Basler Fossilgebäude neu gestalten. Ziel war es, eine Arbeitsumgebung zu schaffen, die den Wandel der Arbeitswelt unterstützt und zugleich die unternehmerischen Werte von Sobi sichtbar macht: Nachhaltigkeit, Offenheit, Zusammenarbeit und das Wohlbefinden der Mitarbeitenden.
Der Umgang mit dem Bestand spielte dabei eine zentrale Rolle. Statt das Gebäude neu zu denken, haben wir es behutsam weiterentwickelt. Der ursprüngliche Parkettboden wurde erhalten und überarbeitet, bestehende Möbel im Sinne eines Reuse Konzepts weiterverwendet, akustische und funktionale Elemente gezielt ergänzt oder aufgewertet. So entstand eine gestalterische Kontinuität, die den Charakter des Ortes respektiert und gleichzeitig Raum für neue Nutzungsformen bietet.
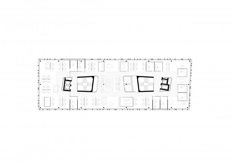
Das neue Bürokonzept umfasst rund 100 flexible Arbeitsplätze, 50 Touchdown Stationen, 10 Focusräume, 9 Sitzungszimmer und 5 Single Offices. Die Raumstruktur ist offen, bietet aber ausreichend Rückzugsmöglichkeiten. Sie ermöglicht konzentriertes Arbeiten ebenso wie spontane Zusammenarbeit und passt sich so den unterschiedlichen Anforderungen im Arbeitsalltag an.
Auch die Material- und Farbwahl folgt diesem Ansatz. Helle, natürliche Oberflächen, eine zurückhaltende Farbpalette und gezielte Begrünung schaffen eine freundliche, ruhige Atmosphäre. Die Gestaltung tritt nicht in den Vordergrund, sondern schafft einen Rahmen, in dem sich Menschen wohlfühlen und produktiv arbeiten können.
Trotz eines ambitionierten Zeitrahmens von nur sechs Monaten von der Planung im November 2023 bis zur Fertigstellung im Mai 2024 konnte das Projekt dank der engen Zusammenarbeit aller Beteiligten fristgerecht umgesetzt werden.
Für uns bei Superdraft Studio ist dieses Projekt ein gelungenes Beispiel dafür, wie Architektur Werte sichtbar machen kann, wie durch präzise Eingriffe aus Bestehendem Neues entsteht und wie Arbeitsräume geschaffen werden, die nicht nur funktionieren, sondern die Haltung eines Unternehmens spürbar machen.


















