Campus der Hochschule Geisenheim
Von-Lade-Straße 1, Geisenheim, Alemanha
Hörsaalgebäude und Logistiklabor
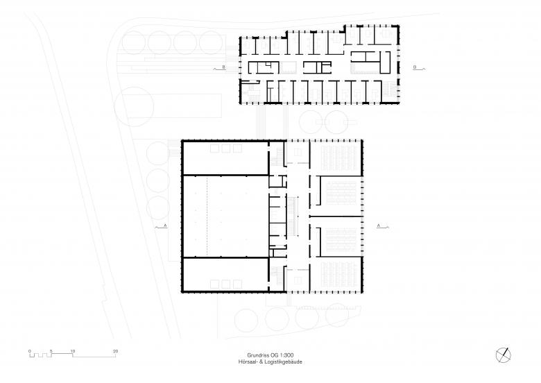
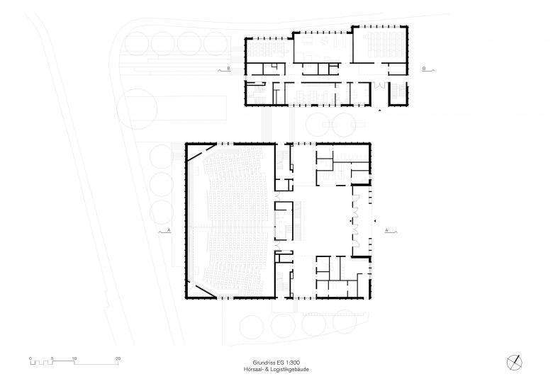
Die beiden benachbarten Häuser vervollständigen die historische Keimzelle der Getränketechnologischen Hochschule Geisenheim, die aus der 1872 gegründeten, ehemaligen Königlich Preußischen Lehranstalt für Obst- und Weinbau hervorgegangen ist. Hier werden heute die Winzer der kommenden Generation in Theorie und Praxis ausgebildet. Hörsaalgebäude und Logistiklabor formulieren gemeinsam den Zugang zum östlichen Hochschulcampus, der von einer prächtigen Zeder an der Von-Lade-Straße markiert wird. Die überdeckte Eingangssituation des Hörsaalgebäudes dient als wettergeschützte Erweiterung des Foyers an der Campuswiese. Das ansteigende Gestühl des Hörsaals mit seinen rund 700 Sitzplätzen legt sich auf die vorhandene Topographie des steil abfallenden Geländes. Ein zenital belichteter offener Treppenlauf führt hinauf zu vier Seminarräumen im Obergeschoss des Hauses.
Das Logistikgebäude folgt dem geschwungenen Verlauf der angrenzenden Falterstraße mit einer Rückstaffelung, die gleichzeitig im Inneren des Hauses ideale Raumtiefen für die unterschiedlich großen Unterrichtsräume generiert. Das Obergeschoss ist als Dreibund mit Büros zu beiden Seiten konzipiert. Die gestaffelte Kernzone wird von Lufträumen unterbrochen, die die Etagen vertikal miteinander verknüpfen. Grob gestrahlte Betonfertigteile artikulieren die Sockel und Geschossdecken der Häuser. Dazwischen spannen sich streng getaktete Holzlisenen mit einer leicht geneigten Bretterschalung, die ein feines Licht- und Schattenspiel auf die Fassaden zaubern. Auch im Inneren dominieren sichtbar belassene Holzoberflächen und brettergeschalter Ortbeton, die durch ihre Materialität und Textur den Häusern eine handwerkliche Authentizität verleihen.
Getränketechnologisches Zentrum
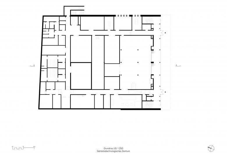
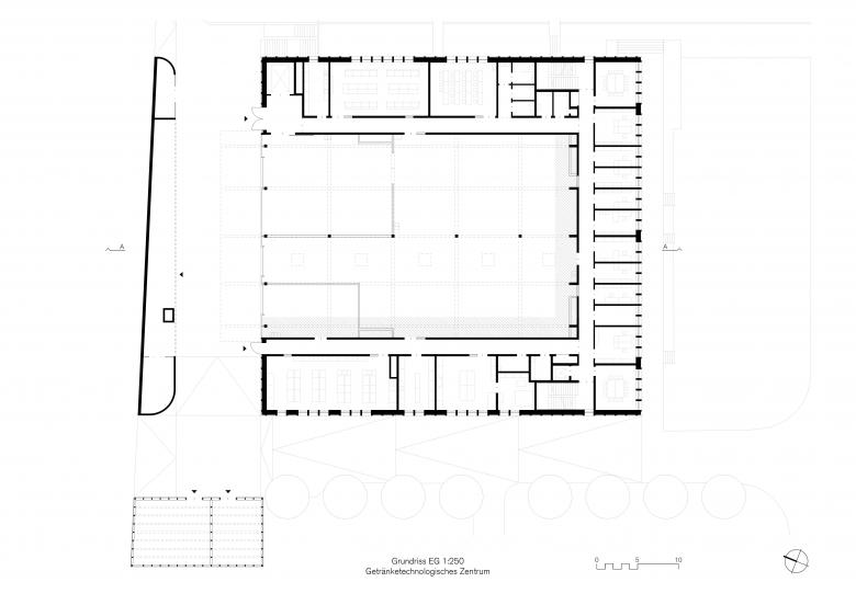
Das Getränketechnologische Zentrum ist der wichtigste Baustein für die praktische Ausbildung künftiger Getränketechnologen an der Hochschule in Geisenheim. Das janusköpfige Gebäude nutzt die vorhandene, deutlich abfallende Topographie. Während das tiefer gelegene, nach Süden hin zurückspringende Sockelgeschoss eine einladende Geste zum künftigen Campusplatz formuliert, erfolgt auf der höher gelegenen Nordseite die Anlieferung der mittig angeordneten Produktionshalle. Um die zentrale Halle legen sich zu drei Seiten mantelförmig umlaufend Labore, Werkstätten und die Verwaltung. Im zentralen Technikum wird der gesamte hochautomatisierte Produktionsprozess der Getränke vom frisch angelieferten Obst, über die Gewinnung von Säften, das Brennen von Schnaps bis hin zur Abfüllung der Getränke in Flaschen und Dosen in der Praxis vermittelt. Das hölzerne Tragwerk ist außen mit Polycarbonatplatten verkleidet und wird so zur Laterne, durch die gefiltertes Tageslicht in die Halle einfallen kann. Im Sockelgeschoss ist eine Schausektkellerei untergebracht, in die Einblicke vom vorgelagerten Verköstigungsbereich aus möglich sind. Ein Sensoriklabor, eine Kaffeerösterei sowie mehrere Werkstätten komplettieren das Raumprogramm dieses in Deutschland einzigartigen Lehrgebäudes. Die Werkstoffe Holz und Beton ergänzen sich hinsichtlich ihrer Stärken und Schwächen in Bezug auf Tragfähigkeit, Robustheit und Nachhaltigkeit und verleihen dem Gebäude eine zeitgenössische und identitätsstiftende Rustikalität.
- Arquitectos
- bez + kock architekten
- Ano
- 2025
- Status do projeto
- Built
- Cliente
- Land Hessen, Landesbetrieb Bau und Immobilien Hessen Wiesbaden
- Equipa
- Tilman Rösch, Volker Eisele, Jonas Lenz, Sabrina Dechant, Hojoong Chang, Roman Ramminger, Christiane Hofmann
- Örtliche Bauleitung
- Ernst² Architekten AG, Stuttgart
- Tragwerksplanung
- Prof. Kind und Partner, Wiesbaden (Hörsaal)
- Tragwerksplanung
- Krebs+Kiefer Ingenieure GmbH, Darmstadt (Logistik)
- HKLS-Planung
- Günther Ingenieure, Gesellschaft beratender Ingenieure, Dresden (Hörsaal)
- HKLS-Planung
- Pinovaplan Ingenieurgesellschaft, Düsseldorf (Logistik)
- ELT-Planung
- MIB Matysik Ingenieurbüro GmbH, Frankfurt a.M.
- Bauphysik / Bauakustik
- ISRW Dr.-Ing. Klapdor GmbH - Niederlassung Mainz
- Brandschutz
- Ingenieurbüro Firosec GmbH, Barleben (Hörsaal)
- Brandschutz
- HZ Brandschutz, Hochheim a.M. (Logistik)
- Landschaftsplanung
- Die Landschaftsarchitekten Bittkau-Bartfelder + Ingenieure GbR, Wiesbaden
- Landschaftsplanung
- Enviro-Plan GmbH, Odernheim































