Centro Civico
Via Daldini, Cadempino, Suíça
Concetto urbanistico
Tra i due nuclei di Cadempino, separati dalla strada Cantonale e dalla ferrovia, si estendeva un vasto spazio verde verso la valletta e il riale al Gaggio. Lo spazio verde diventò il parco della villa Peverelli che successivamente fu frazionato in varie parcelle, tra cui la 233 e la 234, perimetro del concorso per il nuovo Centro Civico.
Vogliamo cogliere l’occasione di riproporre l’unificazione spaziale del parco, compreso dalle parcelle 235 e 236, con i seguenti interventi:
• la riqualifica del muro lungo la via sul lato est del perimetro, a partire dal nucleo che si conclude con il nuovo Centro Civico;
• la riqualifica del muro che costeggia la via Cantonale, a partire dal nucleo che conduce a un nuovo edificio delle parcelle 235 e 236;
• la villa, con possibile ampliamento, viene conservata in quanto oggetto all’interno del parco, così come pure il disegno geometrico nella parte centrale del parco.
In seguito alla riqualifica del limite dello spazio si inserisce il nuovo Centro Civico come edificazione bassa e leggera, sospesa dal suolo, simile ad un padiglione nel parco, mentre il nuovo edificio della parcella 235 si propone come edificio urbano su 3 piani allineato lungo la strada e orientato verso est, sul parco, protetto dal traffico.
Una passerella permette di attraversare il parco e di scavalcare la trafficata strada Cantonale, per raggiungere le fermate del bus.
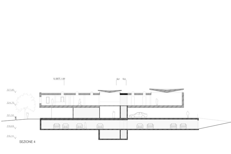
Progetto
La piattaforma che viene a crearsi dalla costruzione del posteggio coperto funge da zoccolo del nuovo Centro Civico. Un volume sovrastante contiene in un unico piano tutte le funzioni dell’amministrazione comunale, uffici e sale. Lo spazio tra la piattaforma e il corpo sospeso forma un grande vuoto che ospita l’entrata al Centro Civico con atrio e posteggi, l’ufficio della polizia e il centro incontro diurno. Questi spazi sono aperti sul parco con ampie vetrate.
Dall’ atrio, aperto al pianterreno, si accede al primo piano, contenuto nel corpo sospeso. L’atrio, spazio di riferimento, è coperto da una copertura sospesa. Un corridoio centrale da accesso agli uffici su un lato e alle varie sale sull’altro. La sala del Consiglio Comunale si contraddistingue spazialmente da una copertura sospesa che offre una maggiore altezza e un illuminazione naturale zenitale. Gli archivi sono predisposti in cantina, con i locali tecnici, sottostante il posteggio.
Sistema costruttivo e materiali
Il volume del posteggio che crea la piattaforma compreso le due lame e il corpo scale e ascensore che fungono da appoggio sono in cemento armato. Il volume sospeso è in legno, per la sua leggerezza, per le caratteristiche statiche e energetiche per quanto riguarda il valore dell’isolamento per l’ottenimento dello standard Minergie. Le due facciate principale costituiscono delle travi in legno lamellare massiccio di 320 mm spessore mentre quelle laterali e le pareti interne sono dei tralicci che portano le solette.
La parte bassa è in beton, compreso il pavimento che è previsto in cemento duro o in sasso, mentre il corpo sospeso è in legno. Il tetto è previsto con una sottile vegetazione di muschio di 5 cm con le parti sopraelevate in carta catramata ardesiata di colore rosso.
Parco
Si propone di mantenere il disegno del vecchio parco che attualmente va a cavallo della proprietà 232 e 233, in modo a mantenere l’unità e evitare una separazione derivante dal confine arbitrario. L’attuale alberatura viene mantenuta e completata come libera piantagione caratteristica di un parco ottocentesco attorno al disegno geometrico della parte centrale. Semplici camminamenti in ghiaietto frantumato calcare completano i passaggi necessari.
- Arquitectos
- Könz Architetto
- Ano
- 2010
- Status do projeto
- Under Construction








