Dreifachsporthalle Schulanlage Kaselfeld

Bellach, Suíça

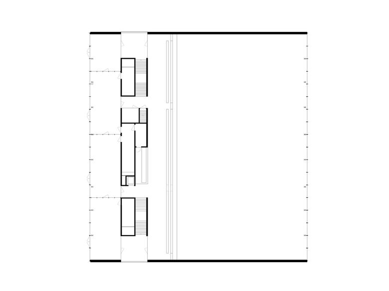
Die Schulanlage Kaselfeld, in den 60er Jahren teilweise von den Architekten Bruno und Fritz Haller gestaltet, konnte mit einer Dreifachsporthalle und Werkräumen ergänzt werden. Dank seiner geringen Gebäudehöhe fügt sich der Neubaukörper harmonisch in die bestehende Schulanlage und in das kleinmassstäbliche Wohnquartier ein. Mit der Übernahme der Fassadenlinien des talseitigen Schulhauses wird die Nord-Südorientierung der Aussenräume gestärkt und die Fernsicht der benachbarten Wohnhäuser bleibt unverbaut.

Die beiden Glasfassaden stehen quer zum Hang und geben den Blick auf die Bergsilhouette des Jurasüdfusses frei. Nach Betreten des Gebäudes erreichen die Nutzer direkt die Zuschauergalerie. Ostseitig befindet sich die abgesenkte Dreifachturnhalle und im westlichen Gebäudeteil sind die Werkräume untergebracht. Ein Zwischenbau trennt die beiden Bereiche und nimmt die Nebenräume auf. Im Untergeschoss befinden sich nebst der Halle die Garderoben- und Geräteräume.

Beide Seitenwände aus Sichtbeton sind mit einem groben Kellenwurf verputzt und mit zwei grossen Glasfronten aus eloxierten Aluminiumprofilen kombiniert. Die Stahlträger mit einer weissen Profilblech-Eindeckung überspannen die Sporthalle und die Werkräume. Die Innenwände der Halle, Teile der Galerie sowie der Werkräume sind mit Lärchenholz beplankt.

2010–2013

Bauherrschaft : Einwohnergemeinde Bellach
Mitarbeit : Andreas Schmied, Jessica Iskenius, Christian Gut, Roger Gut, Marc Haller

Arquitectos
Haller Gut
Ano
2013
Status do projeto
Built

Projetos relacionados 

  • Moos
    playze
  • Reiters Reserve Premium Suiten
    BEHF Architects
  • Erweiterung und Instandsetzung Hallenbad Altstetten
    MIYO Visualisierung
  • Neubau von fünf Einfamilienhäusern
    Bäumlin+John AG
  • The Forge in der 105 Sumner Street in London
    Kiefer Klimatechnik GmbH

Revista 

Outros projetos por Haller Gut 

Sanierung Wohnung Stauffacherstrasse
Bern, Suíça
Sanierung HUM
Payerne, Suíça
Mehrzweckhalle OS
Tafers, Suíça
Sanierung und Aufstockung Schulanlage Neumatt
Belp, Suíça
Mehrzweckhalle Aarfit
Aarberg, Suíça