Erweiterungsneubauten Kantonsschule Limmattal, Urdorf

© Igor Ponti

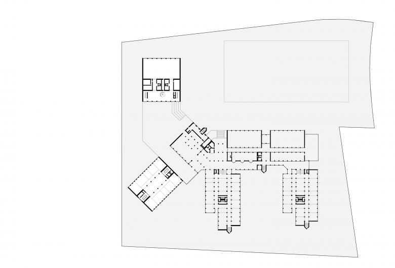
Die Grundorganisation der bestehenden Schulanlage wird mit neuer Aula, Turnhallen und Klassen erweitert. Die neuen Perlen an der Kette sind ähnlich in der Form und unterschiedlich in der Höhe: die Staffelung zur Strasse hin bildet volumetrisch den Abschluss und gleichzeitig aussenräumlich den Auftakt. Zwischen den beiden Doppelturnhallen befindet sich um 90° gedreht die Aula. Das gigantische Zwischengeschoss fungiert als riesiger Ober-/Unterzug und reduziert die statischen Höhen. Die Haptik der gefalteten Betonfaserelemente referenziert die Welleternitfassade der bestehenden Trakte. Einfache, robuste Konstruktionen und flexible Raumnutzungen dank Rippendecken charakterisieren die Neubauten.

Preisträger Betonpreis Hochbau 2025
© Igor Ponti
© Igor Ponti
© Igor Ponti
© Igor Ponti
© Igor Ponti
© Igor Ponti
Arquitectos
PENZISBETTINI.
Ano
2017
Status do projeto
Built
Cliente
Staat Zürich vertreten durch das Hochbauamt Kt. Zürich
Equipa
Laterza Graf Baupartner, S2L Landschaftsarchitektur BSLA SIA, ingegneri pedrazzini guidotti sagl, Dr. Lüchinger + Meyer, ahochn, R+B Engineering, Bakus Bauphysik + Akustik

Projetos relacionados 

  • Gymnasium Schulstraße
    Kronaus Mitterer Architekten
  • GROHE Water Experience Center
    D’art Design Gruppe GmbH
  • Limmatquai 4
    Kästli Storen
  • Volksschule Erlaaer Schleife
    Kronaus Mitterer Architekten
  • Ortsdurchfahrt Domat/Ems
    Luminum GmbH

Revista 

Outros projetos por PENZISBETTINI. 

Um- und Anbau, Möriken
Suíça
Umbau Physiostation 5, Seebach
Neubau Mehrzweckhalle Breite, Oberlunkhofen
Suíça
Umbau Splügenstrasse, Zürich
Umbau Physiostation 1, Schlieren