Esbjerg Maritime Center
Esbjerg, Denmark
In the seaport town Esbjerg on the Danish west coast, a new maritime center has opened to the public. Developed by WERK Arkitekter and Snøhetta, following a design competition in 2019, the center is created as a shared space for watersport clubs and visitors along the port, providing the town with a social maritime hub and architectural landmark.
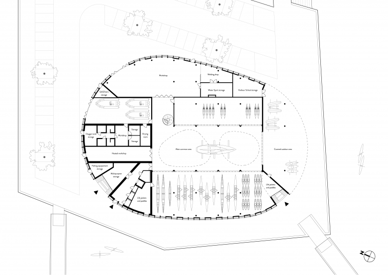
Esbjerg’s new Maritime Center, dubbed “The Lantern”, is designed to put the community first. Housing multiple watersport clubs, boat storage, training facilities, a large workshop space and social functions, the center is a true hub for maritime activities. Its circular, open design invites visitors in from every angle, creating an accessible and inclusive building.
Room for maritime activities and communities
The upper level of the building houses various clubs, including clubs for rowing, kayaking, sailing, diving and triathlon, as well as common areas, an educational center and training facilities. On the lower level, directly connected to the sea by a bridge, one can find the boat storage and workshop space. Large windows throughout the building’s façade give plenty of daylight and visibility inwards, while also connecting the center to its surroundings. At night, a warm glow shines through the windows, lighting the center up like a lantern.
Inspired by wooden boat construction
The building design is inspired by the geometry and craftmanship of boats, paying homage to the maritime tradition and its significance in the port of Esbjerg.
Round-shaped holes between the terrace and the boat storage and preparation area bring daylight down to the ground floor's core and create a visual and social vertical link.
The façade has a rhythm and repetition inspired by wooden boat construction, both outside and inside. It also reflects the water's energy with the pace and horizontal rippling effect experienced when throwing a stone in the water. The changes in the angle of the panels give varying shadows, inspired by the shapes of kayaks. The wooden rhythm continues on the roof, where solar panels are integrated in a belt around the top edge.
Where the poetical and practical meet
With a vision to create a space that unites the poetical with the practical, the Maritime Center aims to find a balance between the mesmerizing and never-ending movements of the sea and practical everyday chores. A symbiosis between the beautiful and the raw, the elegant and the robust.
The robustness of the center is evident not just in the buildings’ ability to facilitate activities, but also in how it creates shelter from strong winds. The building is planned for high water in case the water exceeds the new surrounding dam. Therefore, the structure up to the first floor is made of concrete, poured in one go. The wooden façade is designed to withstand harsh weather conditions, while the building is designed with areas where visitors can find shelter.
One such area, and the heart of the project, is a lifted, publicly accessible terrace, gathering all the different activities of the building. Connected to the first floor, the terrace is accessible from the two main stairs, creating an amphitheater. Along these two amphi stairs, visitors can enjoy the view and the maritime activities on smaller wind-protected terraces on the first floot.
- Arquitectos
- Snøhetta
- Ano
- 2022
- Status do projeto
- Built
- Cliente
- Esbjerg Municipality
- Architects
- WERK Arkitekter and Snøhetta























