Garden House
Los Angeles, USA
Situated on a corner lot adjacent Los Angeles’ Silver Lake Reservoir and Meadow, with views of the water, the surrounding hills, and the Griffith Park Observatory, the design balances the privacy of the family with their desire to fully integrate nature within the life of their home.
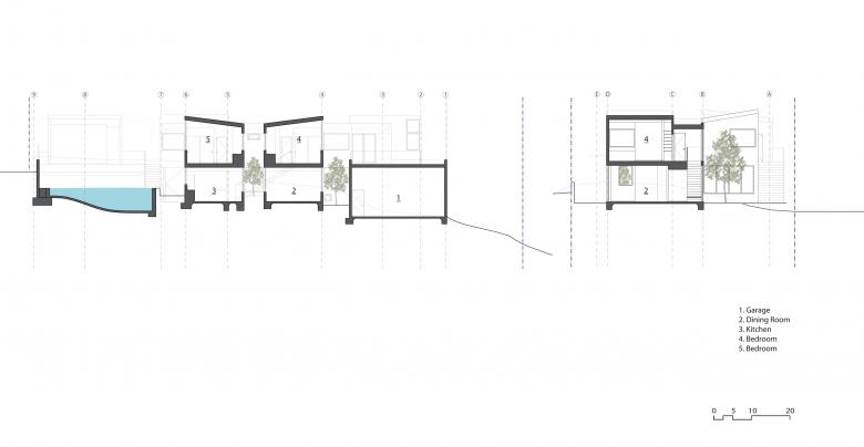
The organizational strategy consists of a circulation spine connecting a series of program pavilions distributed across the site. The placement of these pavilions creates varying scales of gardens allowing landscape elements to significantly infiltrate the home’s interior. Multiple distinct views, overlays of interior rooms and exterior gardens, exist from all moments within the partially subterranean terraced interior.
The ground floor places an emphasis on establishing connection and access into the gardens. The primary and centrally located garden is wrapped by all rooms and serves as an exterior living space. The additional two smaller gardens offer glimpses of nature and provide a diffused light to enter the interiors. The open floor plan penetrated by the multiple gardens present an evolving connection to the site.
While the first floor focuses inwards, the second floor utilizes an inverse strategy by turning outwards to the more distant vistas of the site. Elevated above the street, carefully placed apertures are oriented in response to micro and macro site conditions. Windows in bedrooms are focused on lake, meadow, hills, and observatory views, while also looking into and across the gardens.
The pavilions are clad in a Shou Sugi Ban charred cypress wood and the circulation spine is finished in a smooth exterior plaster. Rift-sawn oak floors and cabinets, dark bronze aluminum windows and interior railings, cement tile, and plaster are the primary interior materials. The gardens and surrounding landscape are planted with a variety of native plants and trees that receive a majority of their irrigation through rain water catch basins located on site. Due to the integration of the gardens and the numerous operable window systems around the perimeter of the home, passive heating and cooling is very effective throughout the year.


















































