Gesamtsanierung Florastrasse 52
Das Doppelhaus Florastrasse 52 und 54 von 1875 stellt den Typus eines frühen Mietshauses dar, das sich am vorherrschenden Klassizismus der Villenbauten orientiert und ihm mit bescheideneren Mitteln nachkommt. Mit mehrheitlich Abbruchmaterial wurde der Schein einer bürgerlichen Welt erweckt.
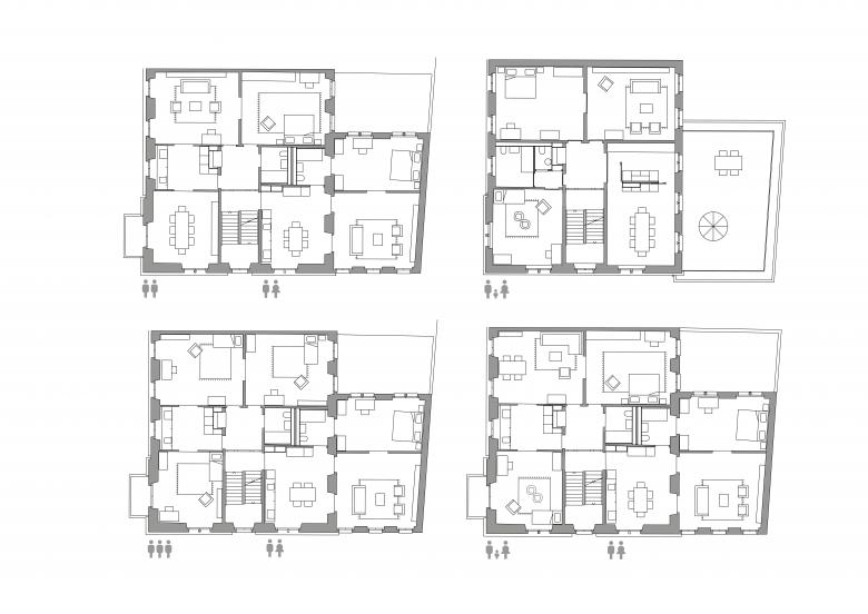
Der Umbau zur Musikschule des Gebäudeteils Florastrasse 52 in den 1970er Jahren hatte stark in die innere Bausubstanz eingegriffen und den originalen Zustand weitestgehend zerstört. Der erneute Nutzungswechsel zurück zum Wohnhaus mit acht preiswerten Mietwohnungen bedingte durch erhöhte gesetzliche Anforderungen an Statik, Schall- und Brandschutz zusätzliche Eingriffe in die Substanz.
Die Konzeption des Umbaus spürt die kammerartige Raumstruktur des denkmalgeschützten Baumeisterhauses auf und übersetzt sie in präzise und klare Grundrisse mit qualitätsvollen Räumen. Grosszügige Verbindungen und Rundläufe schaffen allseitige Durchblicke und atmosphärische Lichtstimmungen. Die Flexibilität der nutzungsneutralen Räume ermöglicht vielfältige, unterschiedlichste Wohn- und Lebensformen und sichert langfristig die hohe Gebrauchstauglichkeit und Wohnqualität – das historische Gebäude eignet sich in hervorragender Weise für zeitgemässes Wohnen.
Der sparsame Innenausbau mit sorgfältiger Detailierung, Material- und Farbwahl unterstützt die Raumstruktur und lässt die verlorengegangene Qualität und Stimmung des baumeisterlichen Hauses, die in der Gestaltung der stattlichen und stolzen Fassaden noch vorhanden sind, wiederaufleben.
Die wiederhergestellte Kohärenz von Grundriss und Fassade stärkt das städtische Gebäude in privilegierter Lage langfristig als werthaltige Immobilie.
- Arquitectos
- Zach + Zünd
- Ano
- 2020
- Status do projeto
- Built
- Cliente
- Stadt Zürich Liegenschaften
Projetos relacionados
Revista
-
-
A Construção da semana
The Three-Body Problem: Trapped in a Wave Sandwich
Eduard Kögel, Scenic Architecture Office | 13.04.2026 -















