Hotel Ambassade. Interiorismo de zonas públicas, biblioteca y brasserie.

Amsterdam, Holanda

El Hotel Ambassade reside en Amsterdam desde 1953, en los canales Herengracht y Singel, ocupando un conjunto de casas del canal del siglo XVII. A lo largo de estos años el hotel ha experimentado algunas mejoras siempre enfocadas a la idea de un hotel íntimo y confortable, un lugar donde el huésped se sienta como en casa.

En 2014 los propietarios del hotel encargaron a Cruz y Ortiz Arquitectos el proyecto de renovación y ampliación de las zonas comunes. Antonio Cruz y Antonio Ortiz son clientes habituales del hotel desde hace más de 20 años. Los trabajos de renovación y ampliación tenían tres puntos de partida:

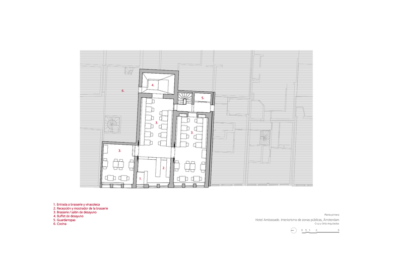
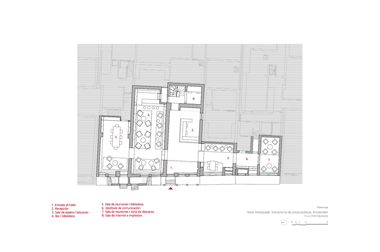
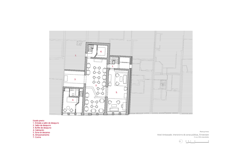
El primero de todos, que la muy relevante colección Cobra, propiedad del hotel, estuviera más accesible para los clientes. En segundo lugar, el Hotel Ambassade es visitado muy a menudo por escritores que suelen donar al hotel un ejemplar original firmado por ellos. Por este motivo, el hotel cuenta con una biblioteca de más de 4000 libros únicos. Por último, la creación de un lounge bar, lo suficientemente pequeño como crear un ambiente íntimo y una nueva brasserie (un nuevo restaurante) en la primera planta. Teniendo en cuenta la situación anterior, una de las primeras medidas a tomar era reorganizar los espacios. Algunas de las características especiales de las casas se habían perdido debido a modificaciones anteriores en el edificio, dando como resultado un espacio algo amorfo. La suma de decisiones inconexas tomadas a lo largo de los años ha supuesto una pérdida en la coherencia de la estructura original de las casas en el canal. Por lo tanto el primer paso era dotar a los espacios de geometría y claridad. La sucesión de pasajes alineados contemplados en la propuesta de diseño facilita el tránsito de una casa a otra, como un paseo a través de secuencias de espacios en los que uno puede reconocer de nuevo las casas originales. Al recuperar la orientación espacial, las zonas públicas del hotel se perciben de una manera más sosegada.

Arquitectos
Cruz y Ortiz
Ano
2015
Status do projeto
Built
Cliente
Ambassade Hotel

Projetos relacionados 

  • Moos
    playze
  • Reiters Reserve Premium Suiten
    BEHF Architects
  • Erweiterung und Instandsetzung Hallenbad Altstetten
    MIYO Visualisierung
  • Neubau von fünf Einfamilienhäusern
    Bäumlin+John AG
  • The Forge in der 105 Sumner Street in London
    Kiefer Klimatechnik GmbH

Revista 

Outros projetos por Cruz y Ortiz 

Museo del Mundo Marino
Huelva, Spain
Junta de Andalucía
Sevilla, Spain
Oficinas para Consejería de Economía e Innovación en Almanjáyar
Granada, Spain
Estadio de atletismo de la Cartuja, oficinas y hotel
Sevilla, Spain
The Rijksmuseum
Amsterdam, Holanda