Maison dans un verger
Rue Danton, Montreuil, França
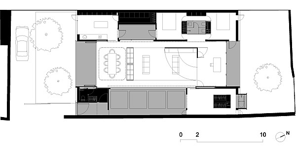
Situé dans un jardin maraîcher en cœur d'îlot dans le vieux Montreuil, le terrain orienté nord/sud le long d’un ancien mur à pêches forme un enclos végétal qui délimite une aire de silence coupée de son environnement. Ce verger nous est immédiatement apparu davantage comme un espace intérieur propice à l'habitation que comme le réceptacle d'une construction. La maison s’étale au rez-de-chaussée pour se fondre dans le jardin dont elle occupe la totalité de la largeur et la moitié de la surface. Invisible depuis l’extérieur, sans façade ni statut social, cette absence de maison est conçue pour être vécue de l'intérieur. Des éléments mobiles (rideaux, cloisons pivotante et coulissantes) permettent de modifier les limites et la configuration de la pièce principale, et des parois vitrées s'escamotent intégralement pour dégager le patios et les terrasses de façon à ouvrir l'espace domestique sur le jardin. Des caissons en acier inoxydable glacé réfléchissent la lumière et assurent la transition entre intérieur et extérieur. La maison voit ses limites se confondre avec celles du verger, ne se donnant à voir que dans le plan horizontal de sa toiture, dans un face à face avec le ciel et les éléments naturels.














