Haus des Tourismus Stuttgart
Stuttgart, Alemanha
Auf dem Marktplatz schlägt das Herz Stuttgarts – für Einheimische genauso wie für die Gäste der Stadt. Hier findet der Wochenmarkt statt, genauso wie das Weindorf oder der Weihnachtsmarkt, die Besucher aus der ganzen Welt anlocken. Am Puls der Stadt bezieht das „Haus des Tourismus“ das Gebäude des ehemaligen Modehauses Breitling; Ippolito Fleitz Group gestaltet die Innenarchitektur der Touristinfo und der Arbeitswelten.
Die täglich geöffnete Tourist-Information „i-Punkt“ im Erdgeschoss wird zum wichtigen Kontaktpunkt für die Gäste der Stadt. Mit zwei Gastronomien im Erdgeschoss und auf dem Dach des Hauses und den öffentlich nutzbaren Räumen in den Arbeitswelten der Stuttgart-Marketing GmbH schafft das „Haus des Tourismus“ aber auch vielfältige Angebote für die Stuttgarter selbst. Es ist damit Startpunkt und Treffpunkt, adressiert verschiedene Nutzergruppen und schafft so einen neuen lebendigen Ort mitten im Zentrum der Stadt.
Eine bunte Mischung aus Nachkriegsgebäuden säumt den Stuttgarter Marktplatz, dessen eine Längsseite die Fassade des Rathauses aus den 1950er-Jahren dominiert. Daneben schließt das ehemalige Modehaus Breitling die Stirnseite des Marktplatzes ab. Nach dessen Geschäftsaufgabe entschied die Stadt, diesen zentralen Ort mit dem Haus des Tourismus als attraktive Anlaufstelle für seine Bewohner wie seine Gäste neu zu beleben. Die umfangreiche Sanierung des Gebäude durch asp Architekten setzt auf einen maximalen Erhalt der Ressourcen und Erweiterungen mit biobasierten Materialien wo nur möglich.
Die neue Fassade zum Markt strukturieren charakteristische Rahmenkonstruktionen in vier vertikale Elemente mit perspektivischen Zuschnitten. Diese fokussieren auf die großzügigen Fensterfronten und die dahinterliegenden Innenräume, die damit selbst zum lebendigen Teil der Fassaden-Bespielung werden und neugierig machen.
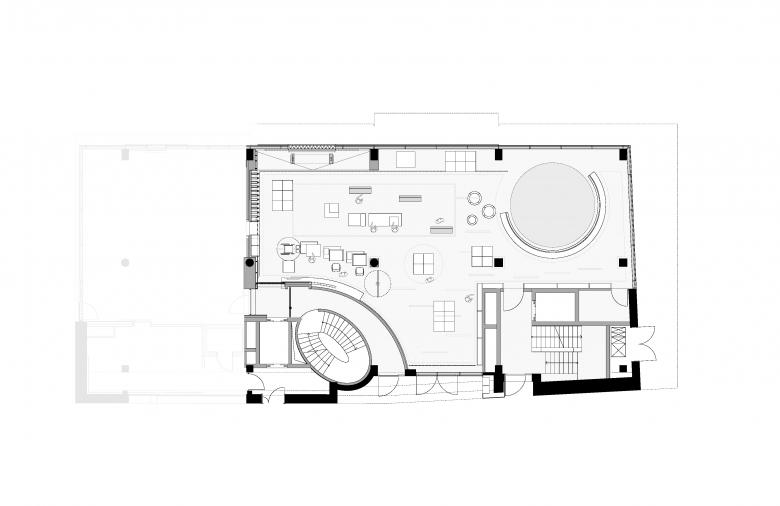
Die Touristinfo i-Punkt
Auf dem Weg zum populären Kaufhaus Breuninger passieren zahlreiche Einkaufsbummler wie Flaneure das Haus des Tourismus. An dieser prominenten Gebäudeecke öffnet sich eine interaktive Bühne nach außen. Auf einer großformatigen LED-Wand werden Image-Filme in einem kinoartigen Präsentationsraum gezeigt – und das auch außerhalb der Öffnungszeiten. Der Ort eignet sich für digitale wie physische Inszenierungen gleichermaßen. Für die Bespielung mit hochwertigem Content sorgen u.a. die verschiedenen regionalen Markenpartner, die zudem einen regelmäßigen Wechsel im Programm garantieren. Hier bleibt man stehen, informiert sich und kommt gern zurück, um sich aufs Neue überraschen zu lassen.
Außenwirkung in Richtung Marktplatz erzeugt außerdem ein hoher Luftraum im Inneren, der sich vom i-Punkt im Erdgeschoss in die erste Etage öffnet. Ikonische Stelen gliedern den Bereich und vergrößern den Raum in der Vertikalen, eine Wirkung, die durch die Spiegeldecke darüber dramatisch verstärkt wird. Auf ihren dem Markt zugewandten Seiten werben die Stelen mit großformatigen Motiven für die Attraktionen der Region. Auf der Rückseite schaffen Regalsysteme einen ruhigen Rahmen für die Vielfalt an Informationsmaterial.
Die Touristinfo ist das Herzstück des Gebäudes und ein klarer Identitätsstifter. Die gesamte Präsentation der Produkte wie der Infomaterialien wird in eine einheitliche wie eindrückliche, nach außen hin ablesbare Form mit starkem Absenderverhalten und hohem Kaufimpuls nach innen übersetzt. Digitale und analoge Medienflächen werben für Stuttgart, die Region und das Urlaubsland Baden-Württemberg. Die Bereiche für Information, Verkauf und die Angebote der Markenpartner sind klar gegliedert. Durch die flexiblen Präsentationsmöbel lässt sich der Raum schnell verändern und weiterentwickeln.
Regionale Produkte sind ein wichtiger Botschafter, von denen es im i-Punkt ein breites Angebot gibt. Hier gehen nicht nur die Gäste der Stadt gern auf Entdeckungsreise nach Erinnerungen zum Mitnehmen, sondern auch Einheimische finden schnell ein passendes Geschenk und Stuttgart-Mitbringsel. Handwerk, Kulinarik und Souvenirs werden auf den verschiedenen Tresen präsentiert. Ein großes Weinregal zeigt die Vielfalt regionaler Winzer und etabliert Stuttgart und die Region als Ziel für Genussreisende. Ein integriertes Fenster ins benachbarte Restaurant animiert dazu, sich davon gleich in der Praxis zu überzeugen.
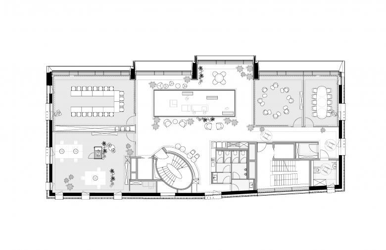
Arbeitswelten im Haus des Tourismus
Vom i-Punkt aus blickt man durch die Verglasung des offenen Atriums in die Flächen der ersten Etage. Dort werden Besprechungs-, Workshop- und Veranstaltungsräume sichtbar. Diese sind Bestandteil der Arbeitswelten für Stuttgart Marketing, werden aber auch an externe Interessierte vermietet: Denn das Haus des Tourismus versteht sich als offenes Haus mit Angeboten für eine breite Nutzung. Die drei mietbaren Flächen sind unterschiedlich konfiguriert. Allen gemein ist der herrliche Ausblick auf das Treiben auf dem Marktplatz. Farb- und Materialwelt sind aus den Corporate-Farben der Stuttgart Marketing GmbH abgeleitet und bieten damit ein Identifikationsmoment für die Mitarbeitenden.
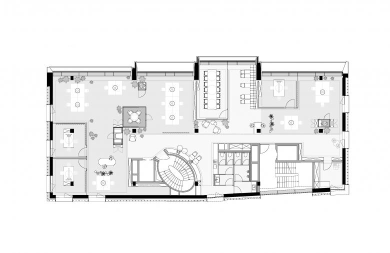
Die auf drei Geschosse verteilten Arbeitswelten der Stuttgart Marketing GmbH und des Tourismus Marketing GmbH Baden-Württemberg (TMBW) bieten ein breites Angebot für unterschiedliche Modi der Arbeit: von konzentriert und kreativ bis kollaborativ und kommunikativ. Um den ovalen Treppenhauskern, ein Relikt des Bestandsgebäudes, sind auf allen Etagen die Teeküchen und Pausenbereiche organisiert. In die ovale Rückwand sind jeweils ein Alkoven und ein setzkastenartiges Regal integriert. Im Regal werden verschiedene Objekte präsentiert, die einen eigenen Erzählstrang als verbindendes Element über die Etagen eröffnet.
Und dann wäre da noch der allgegenwärtige Ausblick auf den Markt. Intensiver kann man das Leben und den Puls der Stadt kaum spüren. Und näher kann man dem Thema und der Aufgabe der eigenen Arbeit kaum sein.
- Interior Designers
- Ippolito Fleitz Group – Identity Architects
- Ano
- 2025
- Status do projeto
- Built
- Team
- Arsen Aliverdiiev, Manu Dhanked, Gunter Fleitz, Christelle Foulon, Sophie Hillebrand, Markus Schmidt Andrea Martinez, Peter Ippolito, Isabel Pohle,
- Total area i-Punkt
- 270 m²
- Total area office
- 1,380 m²
- Architecture
- asp Architekten
- Wayfinding, Spatial graphics
- Studio Tillack Knöll

























