Housing Rack / Pre-fab House in Berlin
Berlin, Alemanha
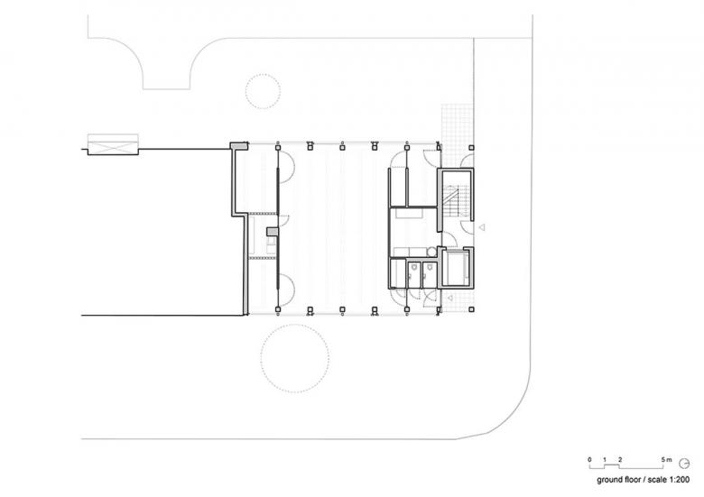
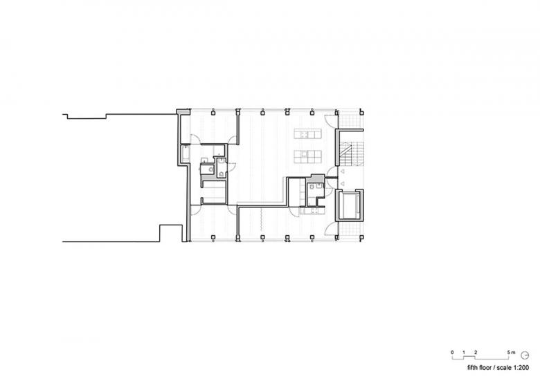
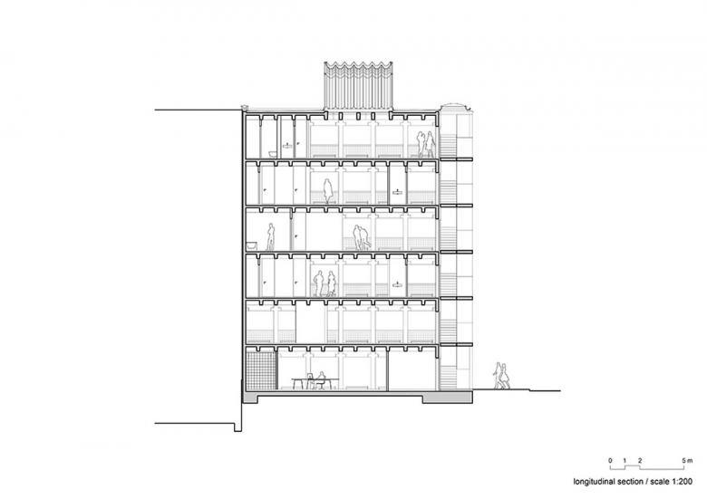
“Wohnregal” houses life/work ateliers. It's based on pre-cast concrete elements common in industrial construction and bridges two challenges. It applies serial construction to save cost and time. At the same time it counters preconceptions that seriality always implies uniformity of the units thus addressing an ever broadening scope of lifestyles. The term Wohnregal translates into “habitable rack”. It is a 6-story structure based on pre-fab concrete elements commonly used in industrial construction. The rack houses affordable ateliers which are renegotiating the relationship of live and work environments. There are two units per floor – oriented east and west. An open staircase along the north façade provides access. The ateliers vary greatly between 35 and 110 sqm. Thanks to the principle of the pre-fab rack spanning from façade to façade without interior structural walls they can each have a different plan layout. Sliding doors appropriated as a curtain wall constitute the east and west façades. They allow for the interior to be opened up during the summer, allowing natural ventilation turning the interior spaces into loggias. The building is situated in a corner lot in Berlin Moabit left unbuilt since the war. “Wohnregal” uses pre-cast concrete elements common in industrial construction. It bridges two contradictory challenges of the Berlin housing market. Pre-fabrication offers cost and time savings thus addressing the rising construction cost. Countering preconceptions that serial construction always implies a standardization of the units themselves, the project offers a wide range of different live/work ateliers for an ever-broadening scope of life styles. The ceilings spanning between the facades without any interior structural support enable this flexibility. Prefabrication in housing has been a century-long story of optimization, and has had a continuous up and down of promises stated and promises broken. The “Wohnregal” takes into consideration this contradictory history of prefabricated construction. It re-appropriates the DNA of the prefabricated warehouse which has taken the approach of optimization to its absolute limits. While exploiting that very economy it also reinterprets its structural openness to introduce a discourse that has been strangely absent in the focus on prefabrication: the complexity and variety of inhabitation. The industrial construction of the “Wohnregal” consists of pillars, beams and TT-ceilings. The latter span from façade to façade economically. All interior walls are built using drywall construction. The lack of any structural members in the interior allows for different layouts an every floor. The construction is very economical (1500 EUR/sqm) and fast (6 weeks for the assembly of the complete prefab structure). The curtain wall consisting of sliding glass doors allows for the interior to be opened up to its surroundings during the spring and summer months, turning the living space into a loggia-like environment. There are no means of mechanical climate control in the building, as the natural breeze creates a comfortable climate even during summer days. The rack structure of the “Wohnregal” offers a great degree of long-term resilience. The interior can be repurposed for different uses in the decades to come. This openness implies a longevity and thus sustainability of the structure. Almost all components of the building have been mechanically connected. In the case of the future disassembly all materials can be separated out and become part of a circular economy.
- Arquitectos
- FAR Frohn & Rojas Planungsgesellschaft mbH
- Ano
- 2019
- Status do projeto
- Built
- Cliente
- Private
- Year completed
- 2019 (Year began 2018)
- Authors
- Marc Frohn (1976 Germany); Mario Rojas (1973 Germany)
- Collaborators
- Architect: Max Koch, Ultike vandenBerghe, Lisa Behringer, Ruth Meigen, Martin Gioleka, Felix Schöllhorn, Pan Hu, Julius Grün, Erik Tsurumaki, Katharina Wiedwald Structural engineering: Tobias Paasche
- Total area
- 328 m2
- Usable floor area
- 1‘087,86 m2
- Cost
- 1‘498 €/m2
- Map LatLng
- (52.5287107, 13.3334975)
Projetos relacionados
Revista
-
-
-
A Construção da semana
The Three-Body Problem: Trapped in a Wave Sandwich
Eduard Kögel, Scenic Architecture Office | 13.04.2026 -










