Biblioteca Municipal de Ílhavo
Ílhavo, Aveiro, Ílhavo, Aveiro, Portugal
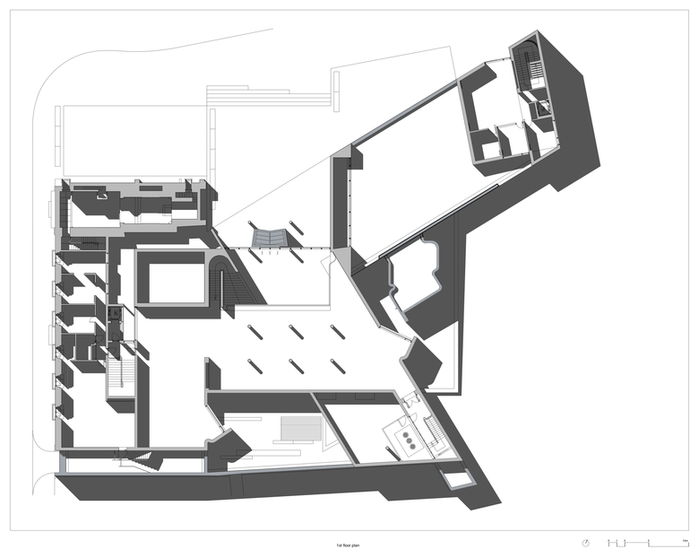
A Biblioteca Municipal de Ílhavo está instalada no que resta do Solar Visconde de Almeida, edifício nobre datado dos séculos XVII/XVIII e posteriormente alterado e demolido. Do edifício original subsistia apenas a fachada principal (sudeste) e a Capela, ambas em ruina. Da antiga cocheira, que rematava o conjunto a sudoeste, já nada restava, mas o que persistia do edifício eram elementos de uma arquitectura qualificada, nas proporções do desenho e elegância de todo o trabalho de cantaria. São registos construídos que rareiam em Ílhavo, que ancoravam o palácio nas ruas e que por isso se entendeu preservar e integrar. O edifício localiza-se na periferia da actual povoação, numa zona de débil expansão urbana ainda muito desarticulada e problemática. Nesse sentido optou-se não apenas de desenhar uma biblioteca, mas antes de mais articular as volumetrias diversas do contexto, clarificar e consolidar fragmentos urbanos sem aparente sentido de conjunto.
O programa preliminar, que pela sua extensão não era possível confinar aos espaços do solar, estabelecia a intenção de construír três núcleos distintos: Biblioteca, Capela e Fórum da Juventude. Como ponto de ancoragem, dentro dos limites do antigo solar e encostados à fachada do palácio, agruparam-se as zonas administrativas, compostas por espaços mais compatíveis com a métrica dos vãos existentes, devolvendo o carácter de edifício, ao que era já um mero cenário decadente. Há contudo uma clara identificação de que se trata de uma nova arquitectura, que existe em ‘simbiose’ com as pré-existências.
A concepção do resto do edifício resulta essencialmente do nosso entendimento do seu carácter público e cívico que nos levou a reforçar o seu ‘desempenho’ urbano. No desenho dos corpos de salas de leitura e fórum da juventude, que constituem o corpo ‘exterior’ ao solar, são estabelecidas relações morfológicas directas com a envolvente. Deste modo o edifício funciona no contexto como um compatibilizador ou espécie de ‘peça de fecho’ que incorpora na sua fisionomia os ‘caprichos’ da envolvente. Nunca faria sentido noutro contexto.
A capela, pese embora o facto de ter sido espoliada dos seus elementos decorativos mais importantes, como azulejos, talhas, lápides tumulares, ou mobiliário, é restaurada na sua essência espacial preservando as evidências possíveis de uma história perdida. O mobiliário é redesenhado e inequivocamente contemporâneo, tal como o novo retábulo de Pedro Calapez, que repõe a tipologia e sentido de policromia original. Pretende-se reactivar o culto na capela, utilização que dela se fez até ao seu encerramento, com a demolição do palácio.









