Jugendcafé Chillmo
Bartningstraße 26, Darmstadt, Alemanha
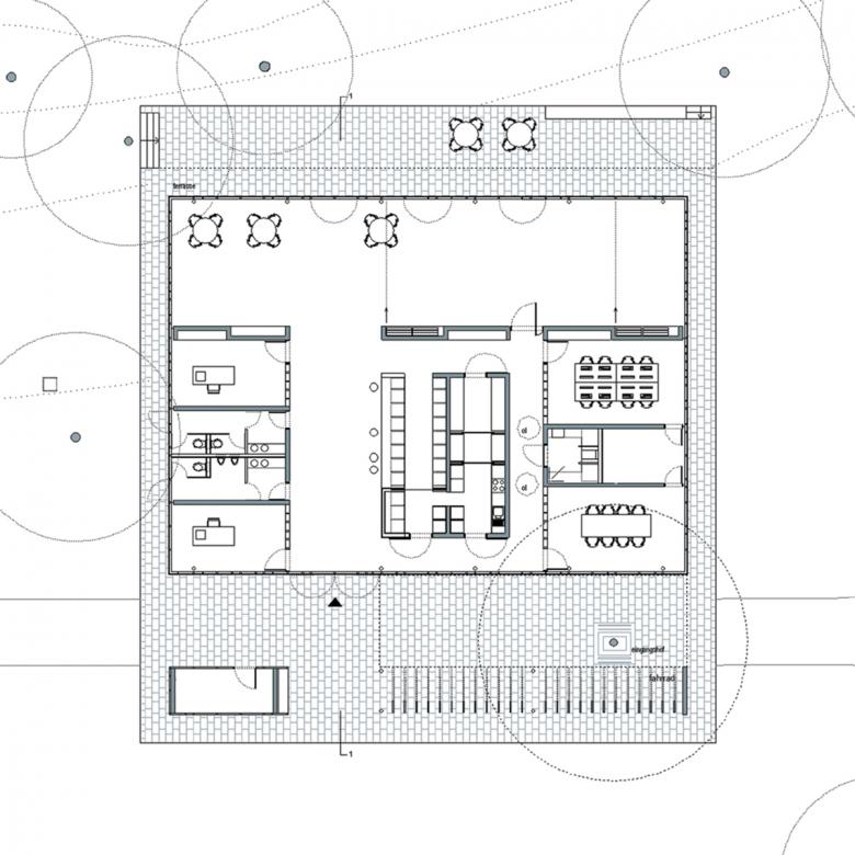
Der Neubau für das Jugendcafe ist als pavillonartiger Baukörper am Eingang zur Brentanoanlage, zum See hin ausgerichtet, konzipiert. Am bestehenden Weg angelagert, greift das quadratische, auskragende Dach als Pergola aufgelöst über den Weg, markiert den Eingang und definiert einen Zwischenraum, der Bestandteil des Parks und zugleich des Jugendcafés wird. Vielfältige Blickbeziehungen sowie die zentrale, kommunikative innere Organisation entsprechen dem inhaltlichen pädagogischen Konzept und erlauben zugleich eine einfache, klare Orientierung.
Bauherr
Stadt Darmstadt, Bund Länder Programm 'Soziale Stadt'
- Arquitectos
- Waechter + Waechter Architekten
- Ano
- 2005
- Status do projeto
- Built
- Cliente
- Stadt Darmstadt
- Auszeichnung
- 2008, BDA Hessen, Joseph-Maria-Olbrich-Plakette
- 1. Preis
- 2008, Landesinitiative Baukultur in Hessen
- Mehrfachbeauftragung
- 2003, 1. Platz
Projetos relacionados
Revista
-
A Construção da semana
The Three-Body Problem: Trapped in a Wave Sandwich
Eduard Kögel, Scenic Architecture Office | 13.04.2026 -
-

















